Технический проект «Объект 432» апреля
Часть. 2.
Пожалуй, наибольшей критике в танке Т-64 подвергались решения принятые для обеспечения подвижности и маневренности. Ходовая часть, которую считали не имеющей достаточного резерва для роста массы танка. Двигатель, который подвергался критики из-за недостаточной надежности, сложности в производстве. Эжекционная система охлаждения, которая, якобы не обеспечивала достаточного охлаждения при возросшей мощности двигателя.
Эти элементы танка пытались изменить в конструкторском бюро в Нижнем Тагиле и в Ленинграде, создав по «образу и подобию» Т-64 свои машины, которые имели конструктивные отличия (ходовая часть, двигатель), в то же время, повторяя его концепцию. Концепция танка – это система взглядов на характер возможных боевых действий, формулировка целей и задач, возникающих перед бронетанковыми войсками на ближайшее и среднепрогнозируемое время. Нижнетагильский Т-72, как и ленинградский Т-80, с точки зрения понятия концепция, ничем не отличались от Т-64. Конструктивно они отличаются, концептуально – нет. Предложенная А. А. Морозовым концепция танка Т-64 была актуальна для своего времени – 60-70-х годов прошлого века. Так уж распорядилась история, что на ее замену пока ничего нового не внедрено в серийное производство, проблема здесь не только в финансировании, а в отсутствии идеологии применения танка в будущих войнах.
Была ли верной ставка на 5ТД? Вероятно, лучший ответ дала сама история - А в результате нашей совместной работы с харьковчанами было принято согласованное решение принять для последующей разработки единое МТО с харьковским двигателем 6ТД-2 [развитие концепции 5ТД], но со всеми танковыми системами двигателя, созданными тагильчанами – к такому мнению пришли на закате СССР [1]. В США также сделали ставку на семейство 2-тактных оппозитных дизелей (3, 4 и 6 цилиндров) в рамках программы Advanced Combat Engine (ACE). Которые, по сути, является повторением на современном техническом уровне концепции 4ТПД, 3ТД, 5ТД, 5ТДФ, 6ТД, [2].
Вопросы испытания эжекционной системы охлаждения танка Т-64А с двигателем В-46 рассмотрены в источнике [3].

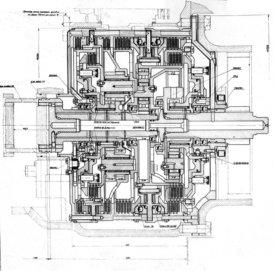
Моторное отделение
МАНЕВРЕННОСТЬ
Повышение подвижности и маневренности танковых войск на местности является, при современных средствах ведения войны, одной из ОСНОВНЫХ и назревших задач.
Решение этой задачи возможно только путем повышения средней технической скорости движения танка на местности, которая сейчас для имеющихся на вооружении танков находится в пределах 20-25 км/час., что явно не соответствует требуемому темпу боевых операций.
Поэтому, в данном проекте проведен ряд мероприятий, которые, в сумме, должны обеспечить резкое повышение средних скоростей движения танка «432» и поднять их с 20÷25 км/час до 35÷45 км/ч.
Максимальня скорость движения нового танка предусмотрена проектом до 65 км/час. Определяющим в вопросе обеспечения указанных скоростей движения является запас свободной мощности, который, при ВЫСОКОМ УРОВНЕ К.П.Д. механизмов танка и моторной установки (и, прежде всего, гусеничного движителя) может быть получен в необходимых пределах, - при удельной мощности танка не менее 20 лс/тон.
Поэтому, в
данном проекте принят двигатель мощностью
Основные положения по силовой установке и ходовой части, определяющих маневренные качества танка, изложены ниже.
МОТОРНАЯ УСТАНОВКА
На танке «432»
установлен двухтактный турбопоршневой двигатель типа 5ТД. танка «430»
Форсированный до требуемой мощности
Общая схема силовой установки и компоновка моторно-трансмиссионного отделения сохранены таким же, как и на танке «430» т.е. с поперечным расположением двигателя и выводом мощности на две бортовые коробки передач.
В отличие от танка «430» эжекционная система охлаждения выполнена не с бортовым, а с кормовым расположением эжектора и смонтирована на съемной крыше, при открывании которой (вращением вокруг оси, расположенной у моторной перегородки), вся система охлаждения поднимается вместе с крышей, обеспечивая свободный доступ ко всем узлам и агрегатам моторно-трансмиссионного отделения.
Кроме решения вопросов доступа, кормовое расположение эжектора системы охлаждения позволило получить оптимальными его геометрические параметры, должно исключить потери от рециркуляции, улучшить условия работы самого эжектора (особенно при высоких скоростях движения) и способствовать защите шторного

5ТДФ (изделие «457»)
вид со стороны турбины.
Примечание: Двигатель 5ТДФ поначалу был самым проблемным вопросом
нового танка. В разгар работ над танком
«432» А. А. Морозов сделал в свой дневник такую запись, видно, что никаких
иллюзий по поводу безоблачного будущего машины не было:
Запись А. А.
Морозова от 18.04.61. На западе я не вижу
больших достижений. Вес танка М-60 – 46,3 тонны, это не победа и не будь
В первую очередь – это двигатели. Их попросту нет и неизвестно, когда
будут. Авиация развивалась в результате прогресса моторов, а мы моторов не
имеем и не развиваем работ по ним. Формально есть НИИ, КБ, заводы, а моторами
не занимаемся, исследования по ним ведутся вяло. 5ТД – это не ястреб и даже не
синица в руках. В лучшем случае его
можно будет получить через 5-7 лет.
Для описания сложившейся в тот период ситуации стоит также привести слова Л. Н. Карцева (Перспективы развития отрасли. Совещание [конференция] в ГКСМ. 10-11.08.1960. Протокольная запись, сокращённая. Инв. № 206-ГКСМ):
Защита пока за
средствами поражения не может угнаться, а масса не должна быть более 34. «Представленные компоновки не
реальны, они не продуманы и мы это знаем по собственному опыту. Эти компоновки
дезориентируют главных конструкторов. Нужно перспективные компоновки
делать по типу 430 с улучшенными средствами поражения. Нашему коллективу
не под силу решать новые сложные задачи.
На том же
совещании А. А. Морозов говорил: Вопрос о
перспективном развитии отрасли никогда раньше не обсуждался и не
рассматривался. Мы работали стихийно, то есть делали образцы и потом подводили
«идейную базу». Мои взгляды многими не разделяются и не одобряются.
А каковы взгляды? 1. необходимость развития
ствольного вооружения и ненужность создания платформ под ракетное пока не
создано само ракетное вооружение, 2. ненужность специальной атомной защиты для
танка, 3. изделие не следует увязывать с
его массой.
ТРАНСМИССИЯ
Для танка «432» применена трансмиссия, аналогичная по своей схеме 6-ти скоростной КП танка «430». Трансмиссия выполнена 7-ми скоростной, т.к. в ней использовано не применявшееся на 6-ти скоростной КП включение сочетания фрикционов Ф3 Ф5, дающее дополнительную передачу. В трансмиссии пересмотрены передаточные числа применительно к новой гамме скоростей для обеспечения повышенных скоростей движения, изменено передаточное отношение бортовой передачи.
Для обеспечения пользования горным тормозом без выжима педали «сцепления», в трансмиссии переработана конструкция узлов управления горным тормозом.
Узлы управления трансмиссией сохранены аналогичными имеющимся на танке «430» и переработаны только применительно к 7-ми скоростной КП, а так же в поправлении максимально возможного уменьшения сопротивления масляных каналов и магистралей. Для повышения четкости работе управления и лучшего дренажирования КП, насосы гидросистемы трансмиссии выполнены на 50% производительнее и перенесены с двигателя на КП.
Как следует из приведенной динамической характеристики, танку с данной трансмиссией обеспечены, при малых перепадах между передачами, весьма высокие динамические качества.

Коробка передач.

Бортовая передача.
ХОДОВАЯ ЧАСТЬ
Все основные узлы ходовой части кроме гусеницы, по своей конструкции приняты аналогичными выполненным на танке "430" и переработаны только применительно к новой компоновке танка, который уширился в нижней части, а так же в направлении дальнейшего облегчения отдельных узлов.
В отличие от танка «430»: за счет повышения максимального напряжения в торсионных валах до 13200 кг/см2 (вместо 9000 кг/см2), торсионы подвесок обоих бортов расположены соосно и по длине заканчиваются по продольной оси машины;
- в целях уменьшения веса, 4 средних катка выполнены Ø 500 (против Ø 550 на крайних) и существенно облегчены;
- изменена конструкция гидроамортизатора, который из условий компоновки выполнен с
диаметром цилиндра
- вместо 3-х поддерживающих роликов, установлено по 4 ролика с каждого борта. Ролики уменьшены по диаметру, облегчены и устанавливаются на кронштейны, приваренные к бортам корпуса.
Касаясь параметров плавности хода танка, следует отметить, что, как показал расчетный анализ и практические данные по испытаниям подвески танка «430», последняя обладает весьма высокими параметрами плавности хода, которые вполне пригодны и для танка «432» с заданными повышенными скоростями движения, тем более, что по подвеске танка «432» следует ожидать еще некоторого повышения параметров плавности, за счет несколько более мягкой подвески (m432 ≌ 230 кг/см, m430 ≌ 250 кг/см)
и более мощных гидроамортизаторов.

Гидроамортизатор.

Каток опорный крайний.

Подвеска.
ГУСЕНИЦА для танка «432» запроектирована с резинометаллическими шарнирами (типа сайлент-блока) и по конструктивной схеме аналогична гусеницам, применяемым на американских танках. При разработке гусеницы, в ее конструкции учтены особенности работы с металлическим бандажом опорного катка.
Гусеница
сориентирована на уже апробированный размер резиновой втулки Ø
40×5 (при Ø пальца
Проведенный ВНИИ-100 расчетный анализ и экспериментальная проверка отдельных элементов данной гусениц, показали удовлетворительные данные по прочности системы.
Обнадеживающие результаты получены так же после предварительной проверки ВНИИ-100 и Академией им. Сталина решающего, для высокоманевренного танка, параметра этой гусеницы и ее К. П. Д., который оказался не ниже принятого расчетного и должен соответствовать:
для скорости движения 40 км/час ~
0, 9 (против 0,85 – для гусеницы с открытым металлическим шарниром), а для скорости
движения 65 км/час ~ 0,85 (против ~ 0,69), т.е. при движении с максимальной
скоростью применение данной гусеницы должно экономить около
Гусеница в
сборе принята шириной

Гусеница (432.55.сб)

Гусеница (432.55.сб) на испытаниях.

Макет для испытания ходовой части объекта «432» на базе танка ОТ-54
Примечание: Ходовая часть танка «432» является одной из наиболее дискуссионных тем в среде интересующихся данной тематикой. Проблемы с ее надежность описаны как в дневниках А. А. Морозова, так и в других источниках [4].
Тем не менее, историческим фактом является то, что за время
серийного производства – с момента принятия на вооружение 30.12.1966 приказом
СМ и ЦК КПСС № 982-321сс до того момента, когда 27 декабря 1987 из сборочного
цеха ушел последний танк Т-64БВ, боевой вес вырос с 36 до 42,4 т. Абсолютный
прирост массы составил 6,4 т. относительный – 17,7%. Прирост массы самой
ходовой части танка в течение его жизненного цикла (с принятия на
вооружение) составил всего 1,1% [5]. В сравнении с техпроектом
масса ходовой части увеличилась с 5129 до
Ходовая часть, представленная в техническом проекте имела
два амортизатора на крайних опорных катках, причем эти катки (первый и шестой)
были выполнены усиленными увеличенного (
Тактико-техническая характеристика
|
№ № п/п |
Параметры |
432 |
430 |
Т-55 |
Американский
танк М-60 |
||
|
1 |
2 |
3 |
4 |
5 |
6 |
||
|
Общие данные |
|||||||
|
1 |
Боевой вес т |
34 |
36 |
36 |
46,3 |
||
|
2 |
Удельная мощность лс/т |
20,6 |
16,6 |
16,1 |
16,2 |
||
|
3 |
Экипаж чел. |
3 |
4 |
4 |
4 |
||
|
|
|||||||
|
4 |
Длина (с пушкой вперед), мм |
8778 |
8785 |
9000 |
8330 (с
пушкой назад) |
||
|
5 |
Ширина, мм |
по гусеницам |
3250 |
3115 |
3270 |
3630 |
|
|
по полкам |
3280 |
3145 |
|||||
|
по съемным сеткам |
3430 |
- |
|||||
|
6 |
Высота (по крыше башни), мм |
2146 |
2160 |
2230 |
2990 |
||
|
7 |
Клиренс, мм |
По основному днищу |
480 |
484 |
480 |
457 |
|
|
по выштамповкам под
торсионы и моторно-трансмиссионному отд. |
455 |
454 |
467 |
||||
|
Под водителем |
415 |
- |
- |
||||
|
Размещение экипажа |
|||||||
|
8 |
Механик-водитель |
в корпусе, по продольной оси |
в корпусе, по продольной оси |
в корпусе, слева |
в корпусе, по продольной оси |
||
|
9 |
Командир танка |
В башне справа, сидя |
В башне слева, сидя |
В башне слева, сидя |
В башне справа, сидя |
||
|
10 |
Наводчик |
В башне слева, сидя |
В башне слева, сидя |
В башне слева, сидя |
В башне справа, сидя |
||
|
11 |
Заряжающий |
нет |
В башне справа, стоя |
В башне справа, стоя |
В башне слева, сидя |
||
Весовая Ведомость (сводная по группам)
Танк «432» с прицел-дальномером
ТПДМС
|
№ п/п |
Наименование |
Вес, кг. |
Примечание |
|
|
432 |
430 |
|
||
|
1 |
Корпус |
11525 |
1234,53 |
Стеклопластик 565 Подбой и 560 свинец |
|
2 |
Башня |
6798,19 |
5104,25 |
|
|
3 |
Вооружение |
3462,87 |
3345,03 |
Механизм заряжания 395,87 |
|
4 |
Моторная установка |
1764,88 |
1965,19 |
Двигатель 1040 |
|
5 |
Трансмиссия |
1348,10 |
1313,19 |
|
|
6 |
Управление |
200 |
186,01 |
|
|
7 |
Ходовая часть |
5129,67 |
6265,34 |
|
|
8 |
Электро-радиооборудование |
517,6 |
541,8 |
|
|
9 |
Оборудование и инструменты |
464,12 |
487,95 |
|
|
Бревно |
85 |
85 |
|
|
|
Брезент |
62 |
62 |
|
|
|
10 |
Топливо |
990 |
935 |
|
|
Смазка |
155 |
132 |
|
|
|
Вода |
70 |
73 |
|
|
|
11 |
Боекомплект |
984,72 |
1811,64 |
выстрелы к пушке 900 |
|
12 |
Экипаж |
300 |
400 |
|
|
Итого: |
33938,35 |
35448,51 |
|
|
II вариант
танка 432 с прицел-дальномером ТРЛД
|
№ п/п |
Наименование добавляемых узлов |
Вес, кг. |
Примечание |
|
|
|||
|
1 |
Аппаратура ТРЛД |
200 |
|
|
1 |
Крепление аппаратуры |
25 |
|
|
1 |
Дополн. вес прицела |
22 |
|
|
1 |
Дополн. бес башни |
20 |
|
|
1 |
Брониробка антенны |
111 |
|
|
Вес танка 432 с ТРЛД |
3432235 |
(33938,35 +384) |
|
ПЕРЕЧЕНЬ
основных организаций и предприятий, участвующих в создании и изготовлении танка «432»
|
п/п |
Наименование организации |
Выполняемая работа |
|
1 |
Уралмашзавод |
Разработка, на базе пушки У5ТС, измененной пушки Д-68 и изготовление опытных образцов |
|
2 |
ЦНИИ-173 |
Разработка и изготовление опытных образцов: Стабилизатора «Сирень»; аппаратуры ТРЛД. |
|
3 |
ЦКБ - 393 |
Разработка и изготовление опытных образцов прицел-дальномеров типа ТПДМС и измененных ночных прицелов. |
|
4 |
Завод №69 |
Разработка и изготовление опытных образцов прицелов типа Т2-С для ТРЛД. |
|
5 |
НИИ-24 НИИ-6 НИИ -147 |
Создание раздельного выстрела с частично сгорающей гильзой («Желудь»). |
|
6 |
Ждановский завод тяжелого машиностроения |
Отработка технологии и экспериментальная доводка различных вариантов башен с комбинированной защитой. Изготовление опытных образцов башен и комплектов бронедеталей корпуса. |
|
7 |
ВНИИ-100 |
- Разработка, экспериментальная доводка и изготовление опытных образцов воздухоочистителя. - Участие в разработке системы охлаждения, подогрева, обогрева боевого отделения и проведение экспериментальных работ по отдельным узлам и элементам. - Разработка совместно с заводом гусеницы с резинометаллическим шарниром, проведение всех предверительных исследований, участие в доводке опытных образцов. - Проведение стендовых испытаний отдельных узлов ходовой части. - Проведение исследований работы трансмиссии на маловязком масле. - Экспериментальные работы по металлокерамическим дискам трения. - Доводочные работы по аккумуляторам 12СТ-70 и отработка новых ВКУ. - Участие в создании, изготовлении и доводке башни с ультрафарфоровыми вставками. |
|
8 |
НИИ пластмасс |
Отработка стеклопластика и антирадиационных подбоев. Поставка опытных комплектов и освоение технологии их крепления в танке. Обоснование и выбор антирадиацнонной защита танка. Совместно с заводом, конструктивное оформление защиты. |
|
9 |
Ф. ВНИИ-100 |
Отработка, совместно с заводом, комплексной защиты танка от бронебойных и кумулятивных снарядов. Проведение необходимых исследований, испытаний и отработка технологии. Осуществление необходимых совместных доводочных работ. Проведение исследовательских работ и отработка торсионных валов подвески с τ = 13250 кг/см2. |
|
10 |
НИИД |
Участие в общей отработке
двигателя 5ТДФ на Проведение исследовательских, экспериментальных и доводочных работ по отдельным узлам двигателя. |
|
11 |
Академия им. Сталина |
Выбор и отработка, совместно с заводом, системы подрессоривания танка, гусеничного обвода, участие в работах по созданию новой гусеницы. Проведение стендовых испытаний отдельных узлов ходовой части. Участие в проведении исследовательских работ по новым металлокерамическим фрикционным сплавам. |
|
12 |
НИИБТ полигон |
Проведение исследований и испытаний отдельных узлов и механизмов, а так же комплексных испытаний систем. |
|
13 |
ВИАМ |
Создание нового металлокерамического сплава для дисков трения трансмиссии. |
|
14 |
МТЗ |
Доработка и изготовление опытных образцов стартер-генераторов. |
Финал карьеры Т-64.
Всего за время
серийного выпуска было изготовлено 1192 танка Т-64, из них в:
Танки 1964-
В период с 1977-го по 1981 год почти все танки Т-64 (объект «432») прошли капитальный ремонт, в ходе которого они были модернизированы до технического уровня танка Т-64А (без замены основного вооружения). После капитального ремонта танки получили индекс Т-64Р «ремонтный». По конструкторской документации он обозначался «432А».
В последние
годы существования СССР начался вывод войск с территории стран варшавского
договора. Находившиеся на территории европейской части СССР танки Т-64
выводились на базы Атар (Казахстан) и Самарканд
(Узбекистан), их место заняли более современные Т-64А и Т-64Б. Последние 432-е
на территории Украины порезали в
Выведенные на территорию республики Беларусь танки утилизировали на заводе в Борисове до начала 2000-х.

Выведенные из Европы танки «432». Апрель 1998 года, 140 Ремонтный Завод, Борисов (Беларусь).
Завершением материала может служить фрагмент выступления на активе по спецпроизводству завода им. Малышева 12.01.66:
… Все Вы были свидетелями, как в прошлом году нас постоянно удостаивали вниманием многочисленные комиссии и ответственные представители высших Правительственных организаций. Это понятно: танки для страны - это вопрос № 2 и танки идут следом за ракетами, опережая даже авиацию.
В силу этого, на заседании Военного совета, где я должен был докладывать, т. Брежнев Л.И. прямо поставил мне вопрос: «А правильно ли т. Морозов мы сделали, что остановились на Вашем танке?». Я ответил утвердительно, что мы выиграли время, продвинулись вперед, отмели все негодное и резко оторвались, а за это стоит заплатить и средствами, и временем, и трудом.
А пока, все данные нам сроки прошли, а мы еще не рассчитались с долгами
и свои обещания не подтвердили делом.
Проведенные нами репетиции в 1965 году полигонно-войсковых
испытаний «432» показывают на еще имеющиеся конструкторские и производственные
недостатки.
Все это усугубило общую обстановку на заводе и обострило сомнения в
Правительственных кругах.
Нам все еще прощают и количество, и стоимость и нашу
неорганизованность, но что касается качества и надежности, то этот вопрос не
сходит с повестки дня всех организаций и является главным вопросом по танку
«432».
К сожалению, мы за надежность боремся не зло, подменяем это всем другим
и мешаем друг другу. Виновны в этом конструктора, опытники и производственники.
У нас на этот счет нет общего языка и единства действий. Не место здесь и не
время ворошить прошедшие ошибки. Теперь главное не повторять их. Это цель и
задача сегодняшнего совещания.
Так или иначе Министр и Начальник УНТВ дали нам последний и
окончательный срок завершения работ по доводке - март этого года, день открытия ХХIII съезда КПСС. Это почетное задание должно стать
соцобязательством и рапортом коллектива завода ЦК КПСС и началом другой жизни
для нашего завода.
Все организационные и подготовительные работы уже проведены и теперь
дело за исполнением этого задания в срок и только высокого качества.
Наш завод, товарищи, является пионером советского танкостроения и его
коллектив уже не раз решал большие и ответственные задачи. Многие из
присутствующих здесь ветеранов не раз были отмечены Правительством и к их
фамилиям относятся с большим уважением и доверием.
У меня нет сомнения в том, что и с этой почетной задачей наш коллектив
справится с честью и тем приумножит славу харьковских танкостроителей.
Надеюсь, что в Вашем лице, как и прежде, я всегда буду видеть своих соратников
по работе, со своей стороны я хочу заверить Вас, что приложу все свои силы и
знания для того, чтобы вместе с Вами успешно решить и эту большую, почетную
задачу.
Список использованных источников:
1. Главный конструктор Владимир Поткин. Танковый прорыв. Сборник статей. – Нижний Тагил: ООО Рекламно-издательская группа «ДиАл», 2013.
2.
3. Эжекционная система охлаждения моторной установки с двигателем В-46. Канд. техн. наук В. С. Дубов, В. А. Иванов, Л. С. Мельников, д-р техн. наук Г. А. Михаилов, П. А. Осипов. Вестник бронетанковой техники. 1976. №2
4. Отчет по результатам
исследования условий работы и надежности ходовой части танка Т-64А. Войсковая
часть 68054.
5. В. В. Поликарпов, А. Ф. Пустовалов. История совершенствования танка Т-64 в ходе серийного производства. Вестник бронетанковой техники. 1988. №11.