ГЛАВНАЯ НА ВООРУЖЕНИИ ПЕРСПЕКТИВНЫЕ
РАЗРАБОТКИ
ОГНЕВАЯ МОЩЬ
ЗАЩИТА ПОДВИЖНОСТЬ 

ЭКСКЛЮЗИВНЫЕ МАТЕРИАЛЫ  БИБЛИОТЕКА ФОТООБЗОРЫ
 
 

СССР

МИНИСТЕРСТВО ТРАНСПОРТНОГО И ТЯЖЕЛОГО МАШИНОСТРОЕНИЯ

 

НОВЫЙ СРЕДНИЙ

ТАНК

 

НОВЫЙ СРЕДНИЙ ТАНК  (Объект «430»)

 

(Объект «430»)

РАСЧЕТНО

ПОЯСНИТЕЛЬНАЯ

ЗАПИСКА

К ЭСКИЗНОМУ ПРОЕКТУ

 

Харьков 1953 г .

 

Настоящий проект нового среднего танка выполнен заводом № 75 Министерства Транспорт­ного и Тяжелого Машиностроения Союза ССР на основании указаний и письма № с-40/00300с от 7 сентября 1953 года Заместителя Министра тов. Максарева Ю. Е., дополнительных требований, изложенных в письме № 700731 от 7 октября 1953 года. Зам. Начальника Технического Управления Министерства тов. Кучеренко Н.А. и ТТТ НТК за № 1672040сс от 26 октября 1953 года.

В основу проекта нового среднего танка положено дальнейшее повышение тактико-техни­ческих качеств, в сравнении со средним танком Советской Армии Т-54, и достижение еще большего превосходства отечественной броне - танковой техники перед танками иностранных армий.

 

ВВЕДЕНИЕ

Проект нового среднего танка (объект «430») заводом разработан и представляется в двух вариантах.

Первый вариант разработан в соответствии с предложенными заводу тактико-техническими требованиями с двигателем марки 8Д12-У завода № 77.

Второй вариант представляемого проекта прора­ботан с двигателем 4ТПД завода № 77 разработанным на основе экспериментальных работ НИЛД и под не­посредственным техническим руководством профессора Чаромского А. Д.

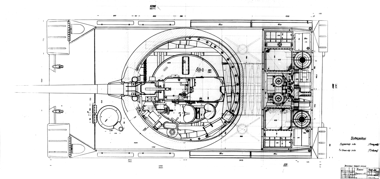
В обоих вариантах объект «430» представляет собой однобашенный средний танк с задним расположе­нием моторно-трансмиссионного отделения с более рациональным, по сравнению с существующими танками, использованием внутренних объёмов.

Благодаря более рациональной и плотной ком­поновке, объект «430» удалось сузить по ширине танка на 170 мм , а также понизить машину в целом на 115 мм в сравнении с Т-54.

Одновременно с этим, за счет увеличения погона с Ø 1815 мм до Ø 2200 мм и освобождения бортов кор­пуса от укладок для снарядов, баллонов ППО и других узлов, деталей ранее крепящихся к бортам корпуса, удалось увеличить объём боевого отделения, чем обес­печить лучшие удобства для работы экипажа в танке.

Сужение корпуса объекта «430», а также корен­ной пересмотр конструкции подвески и движителя позво­лило, не превышая заданного веса, значительно повысить бронестойкость корпуса и башни по скорости от 20% до 40%, установить в объекте «430» стабилизиро­ванную систему Д-54 калибра 100 мм с начальной ско­ростью 1015 м/сек., и довести количество выстрелов до 55 штук, что на 20 штук больше имеющегося количества в танке Т-54.

Установка двигателя типа 8Д12-У (Nе = 580 л .с.) и повышение КПД трансмиссии обеспечивают объекту «430» повышенные динамические качества.

Размещение в объекте топлива в количестве 1000 литров повышает запас хода танка, а малые удель­ные давления, равные 0,75 кг/см2, обеспечивают улуч­шенную, по сравнению с другими танками, проходимость.

Простота конструкции узлов и агрегатов объекта, а также их технологичность изготовления и сборки, стройность форм и строгая компоновка механизмов в танке делают машину наиболее дешевой, простой в изго­товлении и эксплуатации, а главное, наиболее мощной как по собственному огню, так и по защите.

Во втором варианте компоновки объекта «430» установлен двигатель 4ТПД с отбором мощности с двух концов коленчатого вала в стороны правого и левого бортов машины.

По обе стороны двигателя расположены совершен­но одинаковые трансмиссии, выполненные за одно целое с бортовыми передачами.

Такая компоновка позволила двое сократить объемы моторно-трансмиссионного отделения и вместо 3,7 м3 в танке Т-54 довести их до 1,8 м3 в объекте "430" и позволила наиболее рационально, плотно и доступно расположить все узлы и механизмы танка.

Освобожденный объём использован для размещения дополнительного боекомплекта и топлива для двигателя или же может быть использован для других нужд.

В этом варианте компоновки объекта "430" раз­мещено 58 выстрелов для пушки, вместо 34 в Τ-54; и 1200 литров топлива, вместо 730 в Τ-54, не уменьшая при этом, объёмов боевого отделения.

 

 

 

 

 

 

Такая схема трансмиссии танка позволила зна­чительно упростить все механизмы и тем повысить их надежность и простоту обслуживания.

Кроме этого, при этой схеме трансмиссии отпа­ла необходимость в ряде узлов как:

1. Гитара

2. Главный фрикцион

3. Коробка перемены передач

4. Привод вентилятора

5. Вентилятор

6. Тормоза

7. Планетарные механизмы поворота

8. Кронштейн тормозов и система тяг и пере­ходных валиков

9. Бугеля КПП, фундамент гитары, вентилятор, целый ряд соединяющих муфт и других уз­лов.

Одновременно с этим отпадают 24 уплотнения подвижных соединений, требующих к себе внимания при эксплуатации.

Значительно сокращается количество соединительных муфт и большое количество мест и сортов смазки.

Отпадает значительное число центровок и регу­лировок механизмов при их монтаже и эксплуатации.

Все это заменяется двумя узлами трансмиссии, с двумя уплотнениями и одним местом заправки смазки заодно с бортпередачами и двигателем, обеспечиваю­щими высокий КПД,

Так, например, на 5-й передаче мощность двига­теля передается непосредственно на ведущий вал борт­передачи и при этом работает только одна пара цилин­дрических шестерен.

 

 

 

 

 

 

Установка стабилизированной 100 мм пушки с начальной скоростью снаряда 1015 м/сек. с совершен­ными приборами прицеливания и наведения ее, возмож­ность размещения 58-ми выстрелов и 1200 литров топ­лива, малые удельные давления на грунт равные 0,75 кг/см2, большой ход опорных катков подвески ( 329 мм , вместо 184 мм на Т-54) с мощными гидроамортизатора­ми, высокий КПД трансмиссии, удельная мощность до 17,2 л .с./т, наличие обклейки боевого отделения пара­пластом – в этом варианте компоновки могут обеспечить ещё более значительное превосходство над всеми до настоящего времени известными образцами танков, как советской так и зарубежной бронетанковой техники.

 

 

ПЕРВЫЙ ВАРИАНТ

 

Компоновка объекта «430» в первом варианте представляет собой нормальную схему внутреннего и наружного расположения механизмов и устройств танка, общепринятую на большинстве машин и хорошо себя оп­равдавшую в боевом применении.

Объект «430» имеет заднее расположение мотор­но-трансмиссионного отделения, отделенного от боево­го отделения жесткой герметичной перегородкой.

В передней части корпуса располагаются все устройства и механизмы, необходимые для ведения боя, а также расположен боекомплект к пушке и пулеметам.

В передней части корпуса (справа) расположена носовая укладка на 29 выстрелов, а слева место меха­ника-водителя.

В средней части машины расположено боевое от­деление и башня, в которых размещены:

100 мм стабилизированная пушка Д-34, спаренная с пулеметом калибра 7,52 мм , 11 выстрелов, место для трех человек экипажа танка, рация и средства наблюдения и прицеливания.

Выстрелы в боевом отделении расположены сле­дующим образом: 4 выстрела в нишах бортов (по два на каждом), 2 выстрела расположены в корме башни и 5 выстрелов в магазине автоматической подачи, уста­новленном на вращающемся полу башни (справа у систе­мы). Остальные 15 выстрелов расположены в мокрых кормовых укладках у правого и левого бортов.

Такое размещение выстрелов в танке дает за­ряжающему возможность одновременно пользоваться, как носовой, так и кормовой укладками и тем самым способ­ствует увеличению темпа огня.

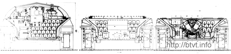
Моторно-трансмиссионное отделение скомпонова­но наиболее плотно с целью максимального использования объёмов, но при обеспечении необходимого свобод­ного доступа агрегатам, требующим ухода и обслужива­ния также возможности легкого их монтажа и демонта­жа.

Двигатель расположен вдоль оси танка и своим носком непосредственно подсоединен к КПП.

Слева и справа от двигателя, со стороны бое­вого отделения, в нижней части корпуса, расположены четыре аккумулятора, имеющие свободный доступ из бое­вого отделения.

Как слева, так и справа от двигателя над ак­кумуляторами расположены две мокрые боеукладки с общим количеством выстрелов 15 штук и емкостью топ­лива 390 литров .

Между боеукладкой и трансмиссией в нижней части корпуса, как у правого, так и у левого бортов, размещены два бачка емкостью по 50 литров каждый.

Один из них является масляным (слева по ходу) другой – топливный.

В носовой части корпуса расположен топливный бак емкостью 260 литров , а в кормовой части - масля­ный бак емкостью 80 литров . Дополнительное топливо в количестве 300 литров расположено в бортовых нишах на подкрылках снаружи корпуса.

Общая емкость топливных баков – 1000 литров .

Ёмкость масляных баков –130 литров.

Оборудование танка, запчасти и шанцевый ин­струмент укладываются в бортовых нишах в передней части подкрылков.

В моторно-трансмиссионном отделении, у самого кормового листа, справа и слева от двигателя, на транс­миссии установлены эжекторные коробки, представляющие собой герметизированные от моторного отделения отсеки, на которых монтируются радиаторы. Один из радиаторов (левый) является водомасляным.

Воздушные фильтры находятся сзади двигателя между отсеками охлаждения, над трансмиссией, к кото­рым обеспечен свободный доступ через имеющийся над ними люк.

Слева, вдоль двигателя, в нижней части танка расположен котел подогревателя.

Доступ к топливному насосу, форсункам, водя­ной помпе и масляному насосу двигателя обеспечивает­ся через имеющиеся люки, как в крыше над моторным отделением, так и в днище танка.

Описание конструкции остальных механизмов и устройств первого варианта танка дается ниже.

 

 

 

 

 

 

ВТОРОЙ ВАРИАНТ

 

Компоновка объекта «430» во втором варианте представляет собой принципиально новое направление в размещении агрегатов внутри танка и по своей рациональности дающее значительные выгоды в объёмах.

Объект «430» во втором варианте также имеет заднее расположение моторно-трансмиссионного отделе­ния, отделенного от боевого отделения жесткой герме­тичной перегородкой.

Также, как и в первом варианте, в передней части корпуса располагаются все устройства и механизмы, необходимые для ведения боя, а также расположен боекомплект к пушке и пулеметам.

В передней части корпуса (справа) размещена носовая укладка на 29 выстрелов, а слева место меха­ника-водителя.

В средней части машины расположено боевое отде­ление и башня, сдвинутая на 150 мм назад, по сравне­нию с первым вариантом, что дает возможность свобод­но расположить люк водителя простой круглой формы Ø 500 мм по оси его сидения.

в башне и боевом отделении размещены:

100 мм стабилизированная пушка Д-54, спаренная с пулеметом калибра 7,62мм, 39 выстрелов, места для трех человек экипажа танка, рация и сред­ства наблюдения и прицеливания.

Выстрелы в боевом отделении располагаются сле­дующим образом: 28 выстрелов в поперечной укладке у моторной перегородки, 4 выстрела в нишах бортов (по два на каждом), 2 выстрела расположены в корме башни и 5 выстрелов в магазине автоматической, подачи, уста­новленном на вращающемся полу башни (справа у системы).

Общее количество выстрелов в танке 68 штук.

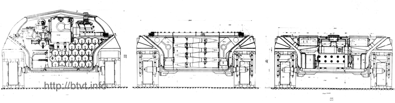
Моторно-трансмиссионное отделение второго варианта представляет собой принципиально новую наиболее выгодную схему компоновки, скомпоновано наиболее плотно с целью максимального использования объёмов, но при обеспечении необходимого свободного доступа к агрегатам, требующим уход и обслуживание, а также возможность совершенно свободного монтажа и демонта­жа агрегатов каждого в отдельности.

Двигатель имеет поперечное расположение. С обеих сторон двигателя, симметрично относительно оси танка, установлены две планетарные трансмиссии, конструктивно выполненные в одном картере с бортовыми передачами.

У самого кормового листа вверху на трансмис­сии расположены два воздухоочистителя.

За воздухоочистителями у моторной перегородки, справа и слева от двигателя, установлены эжекторные коробки, представляющие собой герметизированные от моторного отделения отсеки, на которых монтируются радиаторы. Один из радиаторов (левый) является водо­масляным·

Справа и слева, в нижней части корпуса, вдоль поперечной боеукладки расположены один за другим, по два у каждого борта аккумуляторы, имеющие свободный доступ со стороны боевого отделения.

Над аккумуляторами расположены два топливных бака емкостью 360 литров .

В носовой части корпуса расположен топливный бак емкостью 450 литров , а в кормовой части два бач­ка общей емкостью 40 литров . Дополнительное топливо в количестве 350 литров расположено в боковых нишах на подкрылках снаружи корпуса.

Общая емкость топливных баков – 1200 литров .

Маслобак находится в корме, у самого кормово­го листа и имеет емкость 90 литров .

Доступ к топливному насосу, форсункам, водяной помпе и масляному насосу двигателя обеспечивается через имеющиеся люки, как в крыше над шторным отде­лением, так и в днище танка.

Следует отметить, что подобного рода компоновка моторно-трансмиссионного отделения дает значи­тельные выгоды как по объёмам, так и по снижению ве­са.

Размещение двух трансмиссий с двух сторон дви­гателя, занимающих объём разный объёмам ПМП в танке Т-54, исключает из компоновки моторно-трансмиссионного отделения такие агрегаты как гитара; главный фрикцион; КПП со всеми крепящими их кронштейнами и фундаментами, и ряд других узлов и механизмов, состав­ляющих значительный процент объёма и веса моторно-трансмиссионного отделения танка Т-54.

При этом совершенно может быть исключено цвет­ное алюминиевое литье, идущее на отливки картеров, и уменьшено количество деталей трансмиссии, тем самым уменьшена стоимость изготовления танка.

Наличие в схеме передачи мощности объекта «430» двух упомянутых трансмиссий дает возможность получить радиус поворота танка вокруг своей оси, что непосредственно повышает маневренность танка.

Применение эжекционной системы охлаждения, особенно удачно решенной во втором варианте проекта, исключает из компоновки вентилятор, вентиляторную балку, перегородку и привод к нему.

Втрое уменьшено количество полужестких соеди­нительных муфт (с 6-ти у Т-54 до 2-х), требующих цен­тровки при монтаже, тем самым уменьшена трудоемкость сборки танка, что непосредственно оказывает положи­тельное влияние на параметр массовости выпуска тан­ков.

Значительно уменьшено количество уплотнений вращающихся деталей трансмиссии (с 26-х у Т-54 до 2-х) являющихся очагами течи при эксплуатации.

Сведено до минимума количество точек смазки трансмиссии. Вместо 15 у Т-54, в объекте «430» в силу того, что бортовая передача и трансмиссия конструктивно соединены в один агрегат и применена централизованная смазка под давлением, имеется одна заправочная точка смазки, служащая одновременно для заправки гидравлической системы управления, смазки агрегатов трансмиссии и двигателя. Уменьшение коли­чества точек смазки в значительной степени облегчает уход за танком в эксплуатации.

Если учесть во всему вышеперечисленному, что запроектированные в объекте «430» воздушный, масля­ный и топливный фильтры имеют гораздо больший срок службы, чем у существующих средних танков и удвоен запас хода по топливу, можно отметить, что ото при­дает ему новые эксплуатационные качества и возмож­ность длительного пробега без осмотров и профилакти­ки.

Описание конструкции основных механизмов и устройств второго варианта танка объекта «430» дает­ся ниже.

 

 

 

 

 

Башня объекта «430» как в первом, так и во втором вариантах литая с переменными толщинами по периметру (согласно заданной бронестойкости) со значительными углами наклона боковых стенок и расширен­ным диаметром погона до 2200 мм .

В верхней части башни вварена литая крыша тол­щиной 30 мм , в крыше расположены два люка: люк ко­мандира танка, оборудованный пятью смотровыми прибо­рами и стабилизированным прибором командира; люк заряжающего с турелью для зенитного крупнокалибер­ного пулемета КПВТ, калибра 14,5 мм .

В отличие от всех существующих башен средних танков, в башне объекта «430», благодаря специальной конструкции цапф системы Д-54, удалось ликвидировать вварную рамку. Цапфы системы размещаются в специаль­ных расточках литья башни.

Бронестойкость корпуса и башни выполнена та­ким образом, что обеспечивает защищенность от пора­жений снарядов калибра 100 мм , со скоростью 930м/сек. в секторе;

для башни – 100°

для корпуса –  50° по курсу.

Полученная бронестойкость корпуса и башни резко повышена по сравнению с Т-54 и по отдельным местам даже выше, чем у ИС-4 и «730».

Что касается сравнения бронестойкости корпуса и башни объекта «430» с иностранными образцами танков, то последние опускаются в силу их значительно слабой защищенности.

 

 

ХОДОВАЯ ЧАСТЬ.

ПОДВЕСКА

 

Подвеска объекта “430" выполнена в двух вари­антах.

Упругим элементом в первом и втором варианте подвески является стержневой торсион, в первом вари­анте Ø 52 мм и во втором Ø 46 мм ,

R балансира в первом и втором вариантах соответственно приняты 380 мм и 220 мм .

Ход катка в первом варианте полный - 329 мм , динамический 200 мм , во втором варианте соответствен­но 255 мм и 200 мм .

Благодаря применению выносных опор в обоих ва­риантах подвески удалось значительно разгрузить втул­ки балансиров от действия опорных реакций в сравнении с подвеской Т-54, а также увеличить длину торсиона, что обеспечивает вышеприведенный динамический ход катков в 200 мм .

Гидроамортизаторы поршневого типа двойного действия со специальным конусом и разгруженными саль­никами расположены, как в первом, так и во втором ва­риантах на первых и шестых катках. Их конструктивное выполнение и кривые суммарных характеристик представ­лены на рисунках.

 

ТАБЛИЦА

ходов и удельной потенциальной энергии

подвесок

 

Наименование

Ход (мм)

Удельная потенц. энергия (см.)

полный

статич.

динамич.

Т-54

184

64

120

25

Изд. «430» I

329

129

200

41,5

Изд. «430» II

255

55

200

50

 

 

ЗАКЛЮЧЕНИЕ

Проведенная эскизная проработка нового среднего танка показала, что при более удачной компоновке механизмов и более совершенной их конструкции можно добиться значительного повы­шения тактико-технических качеств среднего тан­ка, при сохранении его боевого веса в пределах 35,5-35 тонн.

В настоящей проработке это повышение, по сравнению с другими средними танками, всех основных его параметров, определяющих боевые и технические качества танка, как боевой машины, достигнуто довольно в значительных пределах, в отдельных случаях, даже превышающих заданные ТТТ и имеющиеся параметры тяжелых танков ИС-3, ИС-4 и «730».

Все это указывает на то, что имеющие­ся в настоящее время в средних танках, пара­метры по боевым и техническим свойствам далеко не являются предельными и могут быть значитель­но повышены без увеличения боевого веса самого танка.

Главными факторами, позволившими завод № 75 достигнуть положительного решения этой задачи, являются те основные принципы, ко­торые были заложены при разработке проекта, а именно:

1. Простота конструкции и стройность ком­поновки машины.

2. Максимальное использование внутренних объемов танка.

3. Снижение веса на всех без исключения деталях танка.

4. Технологичность деталей и максимально возможная их простота по конструкции.

5. Экономия дефицитных, дорогостоящих и стратегических материалов, потребных для изготовления танка.

Можно предполагать, что предъявляемый в настоящем эскизном проекте новый средний танк, наряду с высокими тактико-техническими показателями, будет и по технологичности, тру­доемкости, стоимости и сроку службы находить­ся на уровне требований, предъявляемых к сов­ременной боевой технике и тем иметь еще боль­шее превосходство перед боевой техникой ино­странных армий.

 

ДИРЕКТОР ЗАВОДА          (ПЕТУХОВ)

ГЛАВНЫЙ КОНСТРУКТОР          (МОРОЗОВ)

РУКОВОДИТЕЛЬ ПРОЕКТА         (ОМЕЛЬЯНОВИЧ)

 

 

 

 
 
ГЛАВНАЯ НА ВООРУЖЕНИИ ПЕРСПЕКТИВНЫЕ
РАЗРАБОТКИ
ОГНЕВАЯ МОЩЬ
ЗАЩИТА ПОДВИЖНОСТЬ 

ЭКСКЛЮЗИВНЫЕ МАТЕРИАЛЫ  БИБЛИОТЕКА ФОТООБЗОРЫ