ÃËÀÂÍÀß ÍÀ ÂÎÎÐÓÆÅÍÈÈ ÏÅÐÑÏÅÊÒÈÂÍÛÅ
ÐÀÇÐÀÁÎÒÊÈ
ÎÃÍÅÂÀß ÌÎÙÜ
ÇÀÙÈÒÀ ÏÎÄÂÈÆÍÎÑÒÜ 

ÝÊÑÊËÞÇÈÂÍÛÅ ÌÀÒÅÐÈÀËÛ  ÁÈÁËÈÎÒÅÊÀ ÔÎÒÎÎÁÇÎÐÛ
 
 

NEW MEDIUM TANK OBJECT “ 430” THE PRELIMINARY (CONCEPTUAL) DESIGN PROJECT

 

Abstract

This material represents a unique historical and technical source, presenting an English translation of the preliminary (conceptual) design project of the Soviet medium tank Object “ 430” , originally developed in 1953. The document captures an early and critically important stage in the formation of a fundamentally new Soviet tank design philosophy and provides insight into the evolution of layout concepts, engineering solutions, armament, protection, mobility, and production-oriented design approaches that were later realized in next-generation armored vehicles.

 

INTRODUCTION

One of the important principles adhered to in both domestic and foreign tank design was that the adoption of a new vehicle into service marked the beginning of development of a new tank intended to replace it. Even the most advanced design of its time becomes obsolete within five to ten years.

During the development of each new-generation tank project, a number of intermediate designs were produced. Some of them remained at the level of conceptual or technical projects, while others progressed to the manufacture of running mock-ups. One such example is the conceptual design project of the tank Object “ 430” , completed in 1953.

From the diary of A. A. Morozov, 17 December 1952: The military authorities and the Ministry are urgently preparing tactical and technical requirements for a new medium tank (NMT). A great deal of work is expected, and preparation is required. Our variant of the NMT has received the designation Object ‘430’.”

The described project of a new medium tank was developed by Plant No. 75 of the Ministry of Transport and Heavy Machine Building of the USSR on the basis of directives and Letter No. S-40/00300s dated 7 September 1953 from the Deputy Minister, Comrade Yu. E. Maksarev; additional requirements set forth in Letter No. 700731 dated 7 October 1953 from the Deputy Head of the Technical Directorate of the Ministry, Comrade N. A. Kucherenko; and the tactical and technical requirements of the Scientific and Technical Committee (NTK) No. 1672040ss dated 26 October 1953.

The project of the new medium tank was based on the objective of further improving tactical and technical characteristics in comparison with the Soviet Army’s T-54 medium tank, and on achieving even greater superiority of domestic armored vehicle technology over the tanks of foreign armies.

The project of the new medium tank (Object “ 430” ) was developed by the plant and is presented in two variants.

The first variant was developed in accordance with the tactical and technical requirements proposed to the plant and is equipped with an 8D12-U engine manufactured by Plant No. 77.

The second variant of the project was developed with the 4TPD engine produced by Plant No. 77, designed on the basis of experimental work conducted by NILD and under the direct technical supervision of Professor A. D. Charomsky.

In both variants, Object “ 430” is a single-turret medium tank with a rear-mounted power-transmission compartment and a more rational use of internal volumes compared to existing tanks.

Thanks to a more rational and compact layout, the width of Object “ 430” was reduced by 170 mm , and the overall height of the vehicle was reduced by 115 mm compared to the T-54.

At the same time, by increasing the turret ring diameter from Ø 1815 mm to Ø 2200 mm and freeing the hull sides from ammunition stowage, fire-extinguishing cylinders, and other units and components previously mounted on the hull sides, it was possible to increase the volume of the fighting compartment, thereby providing improved working conditions for the crew.

The narrowing of the hull of Object “ 430” , as well as a fundamental redesign of the suspension and running gear, made it possible—without exceeding the specified weight—to significantly increase the armor resistance of the hull and turret in terms of projectile velocity by 20% to 40%, to install a stabilized 100-mm D-54 gun system with a muzzle velocity of 1,015 m/s, and to increase the ammunition load to 55 rounds, which is 20 rounds more than that of the T-54.

Installation of the 8D12-U engine (Ne = 580 hp) and improved transmission efficiency provide Object “ 430” with enhanced dynamic performance.


 

 

 

MINISTRY OF TRANSPORT AND HEAVY MACHINE BUILDING

OF THE USSR

 

NEW MEDIUM TANK

 (Object “ 430” )

 

ÍÎÂÛÉ ÑÐÅÄÍÈÉ ÒÀÍÊ  (Îáúåêò «430»)

 

(Object “ 430” )

CALCULATION

AND EXPLANATORY MEMORANDUM

TO THE PRELIMINARY DESIGN

Kharkov , 1953

 

 

GENERAL STATEMENT

The present design of a new medium tank has been developed by Plant No. 75 of the Ministry of Transport and Heavy Machine Building of the USSR, in accordance with directives and letter No. S-40/00300s dated September 7, 1953, issued by the Deputy Minister, Comrade Yu. E. Maksarev, as well as additional requirements outlined in letter No. 700731 dated October 7, 1953, from Deputy Head of the Technical Directorate of the Ministry, Comrade N. A. Kucherenko, and Tactical-Technical Requirements of the Scientific-Technical Committee No. 1672040ss dated October 26, 1953.

The fundamental objective of the new medium tank project is the further enhancement of tactical and technical characteristics in comparison with the T-54 medium tank of the Soviet Army, and the achievement of even greater superiority of domestic armored vehicle design over foreign tank models.

 

INTRODUCTION

The project of the new medium tank (Object “ 430” ) has been developed by the plant and is presented in two variants.

The first variant is designed in accordance with the proposed tactical-technical requirements, utilizing the 8D12-U engine manufactured by Plant No. 77.

The second variant incorporates the 4TPD engine, also developed by Plant No. 77, based on experimental research conducted by the Scientific Research Laboratory of Diesel Engines, under the direct technical supervision of Professor A. D. Charomsky.

In both variants, Object “ 430” represents a single-turret medium tank with a rear-mounted power-transmission compartment, featuring a significantly more rational utilization of internal volumes compared to existing tanks.

Due to a denser and more efficient internal layout, Object “ 430” has been narrowed by 170 mm and lowered by 115 mm compared to the T-54.

At the same time, by increasing the turret ring diameter from 1815 mm to 2200 mm , and by removing ammunition stowage, fire-suppression cylinders, and other components previously attached to the hull sides, the volume of the fighting compartment has been increased, thereby substantially improving crew working conditions.

The reduction in hull width, combined with a fundamental redesign of the suspension and running gear, made it possible—without exceeding the prescribed combat weight—to significantly increase armor resistance of both hull and turret by 20–40%, install a stabilized 100-mm D-54 gun with a muzzle velocity of 1015 m/s, and increase the ammunition load to 55 rounds, which is 20 rounds more than in the T-54.

Installation of the 8D12-U engine (580 hp) and improved transmission efficiency provides Object “ 430” with enhanced dynamic performance.

Fuel stowage totaling 1000 liters increases operational range, while the low specific ground pressure of 0.75 kg/cm² ensures superior cross-country mobility compared to other tanks.

The simplicity of the design of assemblies and units, combined with their manufacturability, the clarity of external forms, and the strict internal layout of mechanisms, makes the tank economical to produce, easy to maintain, and—most importantly — highly powerful both in firepower and protection.


 

SECOND VARIANT – GENERAL CONCEPT

In the second configuration, Object “ 430” is equipped with a 4TPD engine featuring dual-ended power take-off from the crankshaft to the right and left sides of the vehicle.

On each side of the engine are identical transmissions, structurally integrated with the final drives.

This arrangement allowed the volume of the engine-transmission compartment to be reduced by more than two times—from 3.7 m³ in the T-54 to 1.8 m³ in Object “430”—while enabling an exceptionally compact, rational, and accessible placement of all units and mechanisms.

The freed internal volume is used to accommodate additional ammunition and fuel, or may be allocated for other operational needs.

In this configuration, Object “ 430” carries 58 rounds for the main gun (compared to 34 in the T-54) and 1200 liters of fuel (instead of 730 liters ), without reducing fighting compartment volume.

 

 


 


 

 

 

TRANSMISSION SCHEME ADVANTAGES

The adopted transmission scheme significantly simplifies all mechanisms, thereby increasing reliability and ease of maintenance.

As a result, the following components are eliminated:

  1. Reduction gear (“guitar”)
  2. Main clutch
  3. Gearbox
  4. Fan drive
  5. Cooling fan
  6. Braking system
  7. Planetary steering mechanisms
  8. Brake brackets and linkage systems
  9. Gearbox supports, reduction gear foundation, fan assemblies, and numerous coupling elements

Simultaneously, 24 dynamic seals requiring maintenance are eliminated, along with a large number of couplings and lubrication points.

The system is replaced by two integrated transmission units, featuring only two seals and a single lubrication filling point, shared with the final drives and engine, providing high overall mechanical efficiency.

For example, in 5th gear, engine power is transmitted directly to the final drive input shaft, with only one pair of cylindrical gears in operation.

 


 

Diesel 4TPD

 

 


 

 

 

 

FIREPOWER, MOBILITY, AND SURVIVABILITY

The installation of a stabilized 100-mm gun with a muzzle velocity of 1015 m/s, advanced fire-control and aiming devices, ammunition stowage of 58 rounds, fuel capacity of 1200 liters , low ground pressure of 0.75 kg/cm², long suspension travel ( 329 mm vs. 184 mm on T-54), powerful hydraulic shock absorbers, high transmission efficiency, and a power-to-weight ratio of up to 17.2 hp/ton, combined with paraplast lining of the fighting compartment, ensures decisive superiority over all currently known Soviet and foreign tank designs.

 

 

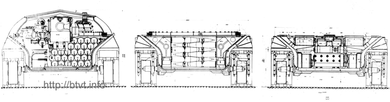
FIRST VARIANT

The layout of Object “ 430” in the first variant represents a conventional arrangement of internal and external tank mechanisms and systems, widely adopted on most armored vehicles and proven effective in combat service.

Object “ 430” features a rear-mounted engine–transmission compartment, separated from the fighting compartment by a rigid, sealed bulkhead.

All devices and mechanisms required for combat operations, as well as the main gun and machine-gun ammunition stowage, are located in the forward part of the hull.

In the forward hull section, on the right side, a frontal ammunition rack for 29 rounds is installed, while the driver’s station is located on the left.

The central part of the vehicle houses the fighting compartment and turret, which accommodate:

  1. a 100-mm stabilized D-54 gun,
  2. a coaxial 7.52-mm machine gun,
  3. 11 rounds of ready ammunition,
  4. positions for three crew members,
  5. the radio set, and observation and sighting devices.

Ammunition in the fighting compartment is arranged as follows: four rounds are placed in side-wall recesses (two per side), two rounds are stowed in the turret bustle, and five rounds are located in the automatic feed magazine mounted on the rotating turret floor (on the right side of the gun system). The remaining 15 rounds are housed in wet stowage racks located at the rear of the hull along the right and left sides.

This ammunition arrangement allows the loader to simultaneously use both the frontal and rear stowage racks, thereby increasing the practical rate of fire.

The engine–transmission compartment is laid out as compactly as possible in order to maximize volume efficiency, while still ensuring adequate access to units requiring maintenance and servicing, as well as ease of installation and removal.

The engine is installed longitudinally along the tank’s axis, with its front end directly coupled to the gearbox.

On the left and right sides of the engine, adjacent to the fighting compartment and in the lower hull, four batteries are installed, with free access provided from within the fighting compartment.

Above the batteries, on both sides of the engine, two wet ammunition stowage racks are installed, accommodating a total of 15 rounds and incorporating 390 liters of fuel capacity.

Between the ammunition stowage racks and the transmission, in the lower hull on both the right and left sides, two auxiliary tanks of 50 liters each are installed. One serves as an oil tank (left side in the direction of travel), and the other as a fuel tank.


A 260-liter fuel tank is located in the forward hull section, while an 80-liter oil tank is positioned in the rear. Additional fuel totaling 300 liters is carried in side compartments on the external fenders.

The total fuel capacity amounts to 1000 liters , while the total oil capacity is 130 liters .

Tank equipment, spare parts, and entrenching tools are stowed in the side compartments located in the forward sections of the fenders.

In the engine–transmission compartment, directly adjacent to the rear armor plate and on both sides of the engine, ejector boxes are mounted on the transmission units. These represent compartments sealed off from the engine bay, upon which the radiators are installed. One of the radiators (the left one) serves as a combined water–oil radiator.

The air cleaners are located behind the engine, between the cooling compartments and above the transmission, with free access provided through a hatch above them.

On the left side of the engine, in the lower part of the hull, a preheater boiler is installed.

Access to the fuel pump, injectors, water pump, and oil pump of the engine is provided through inspection hatches located both in the roof above the engine compartment and in the tank’s bottom.

A description of the design of the remaining mechanisms and systems of the first variant of Object “ 430” is provided below.

 


 

 

 


 

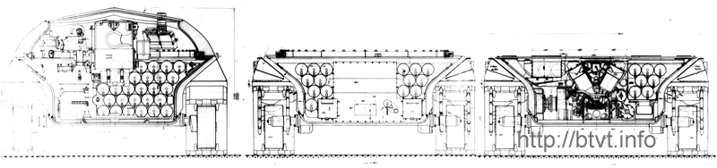
SECOND VARIANT

The layout of Object “ 430” in the second variant represents a fundamentally new approach to the arrangement of units within the tank and, due to its rational design, provides significant gains in internal volume efficiency.

In the second variant, Object “ 430” also features a rear-mounted engine–transmission compartment, separated from the fighting compartment by a rigid, sealed bulkhead.

As in the first variant, all devices and mechanisms required for combat operations, as well as the ammunition for the main gun and machine guns, are located in the forward section of the hull.

In the forward hull section, on the right side, a frontal ammunition rack for 29 rounds is installed, while the driver’s position is located on the left.

The central part of the vehicle contains the fighting compartment and the turret, which in this variant is shifted 150 mm rearward compared to the first variant. This shift allows the driver’s hatch of a simple circular design with a diameter of 500 mm to be freely positioned along the axis of the driver’s seat.

The turret and fighting compartment accommodate:

  1. a 100-mm stabilized D-54 gun,
  2. a coaxial 7.62-mm machine gun,
  3. 39 rounds of ready ammunition,
  4. positions for three crew members,
  5. the radio set, and
  6. observation and sighting devices.

Ammunition in the fighting compartment is arranged as follows: 28 rounds are placed in a transverse stowage rack adjacent to the engine bulkhead; four rounds are housed in side-wall recesses (two per side); two rounds are located in the turret bustle; and five rounds are carried in the automatic feed magazine mounted on the rotating turret floor (on the right side of the gun system).

The total ammunition load of the tank amounts to 68 rounds.

 

Engine–Transmission Compartment

The engine–transmission compartment of the second variant represents a fundamentally new and most advantageous layout scheme. It is arranged in an extremely compact manner to maximize internal volume utilization, while ensuring sufficient access to units requiring maintenance and servicing, as well as complete freedom for the installation and removal of each unit individually.

The engine is installed transversely. On both sides of the engine, symmetrically with respect to the tank’s longitudinal axis, two planetary transmissions are installed, structurally integrated within a single housing together with the final drives.

At the upper rear, directly adjacent to the rear armor plate, two air cleaners are mounted on the transmission units.

Behind the air cleaners, at the engine bulkhead and on both the right and left sides of the engine, ejector boxes are installed. These boxes form compartments sealed off from the engine compartment, on which the radiators are mounted. One of the radiators (the left one) functions as a combined water–oil radiator.

On the right and left sides of the lower hull, along the transverse ammunition rack, four batteries are installed—two on each side—arranged sequentially and providing free access from the fighting compartment.

Above the batteries, two fuel tanks with a capacity of 360 liters each are installed.

A 450-liter fuel tank is located in the forward hull section, while in the rear section two auxiliary tanks with a total capacity of 40 liters are installed. Additional fuel totaling 350 liters is carried in side compartments on the external fenders.

The total fuel capacity is 1200 liters .

The oil tank is located in the rear, directly adjacent to the rear armor plate, and has a capacity of 90 liters .

Access to the engine’s fuel pump, injectors, water pump, and oil pump is provided through inspection hatches located both in the roof above the engine compartment and in the tank’s bottom.


 

Layout Advantages and Operational Benefits

It should be noted that this type of engine–transmission compartment layout provides substantial advantages both in terms of internal volume efficiency and overall weight reduction.

The placement of two transmissions on either side of the engine—each occupying a volume comparable to that of the final drives in the T-54—eliminates from the engine–transmission compartment such units as the reduction gear (“guitar”), main clutch, gearbox with all associated mounting brackets and foundations, as well as a number of other assemblies and mechanisms that constitute a significant portion of the volume and weight of the T-54’s powertrain compartment.

At the same time, the use of non-ferrous aluminum castings for transmission housings can be completely eliminated, and the total number of transmission components is reduced, thereby lowering the manufacturing cost of the tank.

The presence of the two aforementioned transmissions in the power transmission scheme of Object “ 430” makes it possible to achieve a pivot turn about the tank’s own axis, which directly enhances maneuverability.

The application of an ejector cooling system, particularly successfully implemented in the second variant of the project, eliminates the need for a cooling fan, fan support structure, separating bulkhead, and fan drive.

The number of semi-rigid connecting couplings requiring alignment during installation is reduced threefold—from six in the T-54 to two—thereby reducing assembly labor and directly improving the tank’s suitability for mass production.

The number of seals on rotating transmission components—common sources of leakage during operation—is significantly reduced, from 26 in the T-54 to only 2.

The number of lubrication points in the transmission system is reduced to a minimum. Instead of 15 lubrication points in the T-54, Object “ 430” , due to the structural integration of the transmission and final drive into a single unit and the use of centralized pressurized lubrication, has one filling point. This point simultaneously serves the hydraulic control system, transmission units, and engine. The reduction in lubrication points greatly simplifies maintenance during operation.

If, in addition to all the above, it is taken into account that the air, oil, and fuel filters designed for Object “ 430” have a significantly longer service life than those of existing medium tanks, and that the cruising range on fuel is doubled, it may be concluded that this configuration endows the tank with new operational qualities, enabling prolonged operation without inspections or preventive maintenance.

A description of the design of the main mechanisms and systems of the second variant of Object “ 430” is provided below.

 

 


 

 


 

The turret of Object “ 430” , in both the first and second variants, is of cast construction with variable wall thickness around the perimeter (in accordance with the specified ballistic resistance requirements), featuring large angles of inclination of the side walls and an increased turret ring diameter of 2200 mm .

In the upper part of the turret, a cast roof plate 30 mm thick is welded in. Two hatches are provided in the roof: the tank commander’s hatch, equipped with five vision devices and a stabilized commander’s sight, and the loader’s hatch, fitted with a pintle mount for a 14.5-mm KPVT heavy anti-aircraft machine gun.

Unlike all existing turrets of medium tanks, the turret of Object “ 430” , owing to the special design of the D-54 gun trunnions, eliminates the welded trunnion frame. The trunnions are seated directly in machined recesses of the turret casting.

The armor protection of the hull and turret is designed so as to ensure resistance against 100-mm projectiles at a velocity of 930 m/s within the following sectors:

  • Turret: 100°
  • Hull : 50° in the frontal arc

The achieved level of armor protection of the hull and turret is significantly higher than that of the T-54, and in certain areas even exceeds that of the IS-4 and Object “ 730” .

As for comparisons between the armor protection of the hull and turret of Object “ 430” and foreign tank designs, the latter are disregarded due to their substantially inferior level of protection.

 

 

 


 

 

RUNNING GEAR

SUSPENSION

The suspension of Object “ 430” is developed in two variants.

In both the first and second suspension variants, the elastic element is a torsion bar, with a diameter of 52 mm in the first variant and 46 mm in the second variant.

The balancer arm radius (R) in the first and second variants is adopted as 380 mm and 220 mm , respectively.

Road wheel travel in the first variant is 329 mm total, with a dynamic travel of 200 mm . In the second variant, the corresponding values are 255 mm total and 200 mm dynamic travel.

Through the use of outboard supports in both suspension variants, it was possible to significantly reduce the load on the balancer bushings from support reactions in comparison with the suspension of the T-54, as well as to increase the length of the torsion bar. This design ensures the above-mentioned dynamic road wheel travel of 200 mm .

Double-acting piston-type hydraulic shock absorbers, featuring a special conical profile and unloaded seals, are installed in both the first and second variants on the first and sixth road wheels. Their design configuration and the curves of their combined performance characteristics are shown in the figures.

 

TABLE

Suspension Travel and Specific Potential Energy

 

Designation

Total

Static

Dynamic

Specific Potential Energy

T-54

184

64

120

25

Object “ 430” (Variant I)

329

129

200

41.5

Object “ 430” (Variant II)

255

55

200

50


 

CONCLUSION

The preliminary design study of the new medium tank has demonstrated that, through a more successful arrangement of mechanisms and a more advanced design of its assemblies, it is possible to achieve a significant improvement in the tactical and technical characteristics of a medium tank, while maintaining its combat weight within the range of 35–35.5 metric tons.

In the present study, this improvement—when compared with other medium tanks—has been achieved across all principal parameters defining the combat and technical qualities of the tank as a fighting vehicle, in many cases reaching levels that exceed the specified tactical-technical requirements, as well as the existing parameters of the heavy tanks IS-3, IS-4, and Object “ 730” .

All of the above indicates that the combat and technical parameters currently realized in medium tanks are far from their ultimate limits and may be substantially increased without increasing the tank’s combat weight.

The principal factors that enabled Plant No. 75 to achieve a positive solution to this task are the fundamental principles incorporated in the development of the project, namely:

  • Simplicity of design and clarity of overall vehicle layout.
  • Maximum utilization of the tank’s internal volumes.
  • Weight reduction across all components without exception.
  • High manufacturability of parts and maximum possible simplicity of their design.

Economy in the use of scarce, costly, and strategic materials required for tank production.

It may be assumed that the new medium tank presented in this preliminary design project, in addition to its high tactical and technical performance, will also meet requirements with respect to manufacturability, labor intensity, production cost, and service life, as demanded of modern combat equipment, thereby achieving even greater superiority over the armored fighting vehicles of foreign armies.

 

 

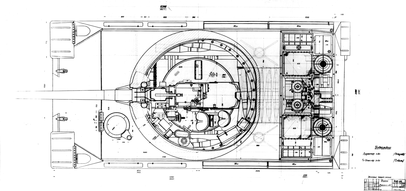
PLANT DIRECTOR (Petukhov)
CHIEF DESIGNER (Morozov)
PROJECT MANAGER (Omelyanovich)

 

COMPARATIVE TACTICAL AND TECHNICAL CHARACTERISTICS OF MEDIUM TANKS

 

Parameter

430

T-54

M-47

Centurion

Tasks and Tech. Req.

Relized on Variant #1

Relized on Variant #2

2

3

4

5

6

7

8

Combat Weight

36 t.

36 t. (35.019 t.)

36 t. (34.883 t.)

36 t.

44.68 t.

49.78 t.

Crew

4 pers.

4 pers.

4 pers.

4 pers.

5 pers.

4 pers.

Dimensions

 

 

 

 

 

 

a) Height w/o AA mount

not more than T-54

2100 mm

2100 mm

2218 mm

2959 mm

3020 mm

b) Width (mm)

not more than 3300

3100 mm

3100 mm

3270 mm

3512 mm

3355 mm

c) Ground Clearance (mm)

not less than 425

430 mm

430 mm

430 mm

489 mm

508 mm

Gun Caliber (mm)

100 (D-54)

100 (D-54)

100 (D-54)

90 (D-10T)

90

83.8

Muzzle Velocity (m/s)

1015

1015

1015

895

835

1020

Machine Guns:

 

 

 

 

 

 

a) Coaxial with gun

1x7.62mm (SGMT)

1x7.62mm (SGMT)

1x7.62mm (SGMT)

1x7.62mm (SGMT)

1x7.62mm

1x7.92mm

b) Bow

1x7.62mm

1x7.62mm

1x7.62mm

1x7.62mm

1x7.62mm

-

c) Anti-Aircraft

1x14.5mm (KPVT)

1x14.5mm (KPVT)

1x14.5mm (KPVT)

1x12.7mm

-

-

Required Equipment:

 

 

 

 

 

 

a) Rangefinder sight

Completed

Completed

-

-

-

-

b) Fire Control Stabilizer

Completed

Completed

-

-

-

-

Ammunition Load:

 

 

 

 

 

 

a) Rounds for gun

45

45 (55)

45 (68)

34

71

65

b) 7.62mm rounds

3000

3000

3000

3500

7080

3600

c) 14.5mm rounds

300

300

300

200

-

-

Armor Protection:

 

 

 

 

 

 

Hull

 

 

 

 

 

 

1. Upper Front Plate

Must not be penetrated by 100mm APBC shell at 930 m/s

Completed (120mm/60°, V=935m/s)

100mm/60°

101.6mm/60°

76.2mm/88°

76.2mm/57° & 44°

2. Lower Front Plate

Must not be penetrated by 100mm APBC shell at 865 m/s

Completed (120mm/55°, V=867m/s)

100mm/55°

-

-

-

3. Side

Must provide protection equivalent to front hull when fired upon within a 45° sector (course angle ±22°30')

Completed, equivalent to front when fired upon within: upper belt ±25°, lower belt ±22°

80mm/0°

50.8-76.2mm/0°

50.8mm/10°

 

Turret

 

 

 

 

 

 

a) Front

Must provide protection equivalent to hull upper front plate

Completed, equivalent to hull upper front plate

180mm

92.1mm/45°

152mm

 

b) Sides

Must provide protection equivalent to turret front when fired upon within a 90° sector (course angle ±45°)

Equivalent to front within 100° sector (course angle ±50°)

avg. 136mm

50.8mm/0°

89mm

 

c) Other unspecified armor elements

Not lower in resistance than T-54

Completed, equivalent to T-54

-

-

-

 

Mobility & Cross-Country:

 

 

 

 

 

 

a) Power-to-weight ratio (hp/t)

not less than 16

16.4 (16.2)

17.2

14.4

18.4

12.8

b) Ground pressure (kg/cm²)

Not more than 0.75

0.75

0.74 (0.75)

0.82

0.96

0.9

c) Speed:

 

 

 

 

 

 

1. Max, road (km/h)

55

55

55

48

59.6

34

2. Avg, dry dirt road (km/h)

30-35

30-35

not less than 35

27

-

-

d) Grade ability (climb/descent)

35°

35°

35°

30°

31°

35°

e) Fuel capacity (liters)

-

730 (1000)

730 (1200)

730

-

-

f) Road range (km)

Not less than T-54

250

250 (500-700)

250

100

138

Engine

Diesel engine type V-2 with 5 kW generator

Diesel 8D-12-U, Ne=580 hp

Diesel 4TPD, Ne=600 hp

Diesel V-54, Ne=520 hp

Ne=810 hp

Ne=640 hp

Transmission

Any, ensuring easy control and operational reliability

Completed. Conventional mechanical transmission with fixed engagement of planetary steering unit and hydraulic control.

Planetary transmission with friction engagement and hydraulic control.

-

-

-

Suspension

Individual, ensuring specified speeds

Completed. Individual torsion bar.

Completed. Individual torsion bar.

-

-

-

Tank service life guarantee

300 km

Provided

Provided

-

-

-

Engine service life guarantee

Not less than 400 hours of operation in the tank.

Completed.

Completed

-

-

-


 

REPORT BY A. A. MOROZOV AT THE MINISTRY REGARDING OBJECT “430”

22 February – 10 March 1954.
At the Main Directorate and with Kozyakin, a review was conducted of the Object “430” tank project and the 4TPD engine. At the same time, projects from Plants No. 183, ChTZ, LKZ, and VNII-100 were also reviewed. Morozov stated:

— Work on the New Medium Tank (NMT) has been carried out by the plant since early 1952. The tactical and technical requirements (TTR) for tank development were submitted by the Scientific and Technical Committee (NTK) of the GBTU to the Ministry of Transport and Heavy Machine Building (MTrM) in mid-1951. Work has continued for three years, and only now have we reached the stage of a preliminary design. During this period, the NMT project was reviewed several times by the MTrM, but not a single decision was taken on it. It should be noted that very little attention has been paid to the NMT program by the GBTU, the MTrM, and cooperating plants. The results presented here were achieved exclusively through the initiative and persistence of the plant’s designers, who have continued to work stubbornly on this subject.

The current pace of work cannot be considered satisfactory and lags far behind the pace of work at foreign plants.

For example, in the journal Military Thought, No. 1 for 1954, page 49, it is stated:
“…in order to produce the new Cromwell tank, whose design was submitted in January 1941, it was necessary to pass through a whole series of authorities to coordinate and approve this project and to determine which company would produce it. As a result, prototype tanks were manufactured and tested only in June 1942, and mass production was established only by June 1943.”

Last year, during the development of the preliminary design, it was found possible to exceed the specified TTR. For three years, the requirements for cruising range, carried ammunition load, protection against toxic agents and dust, crew working conditions, and so forth remained unchanged. All of this was not reflected in the new TTR prepared by the NTK of the GBTU for approval by the Council of Ministers of the USSR.

Moreover, there are proposals originating from certain individuals within the GBTU to avoid “getting too far off the ground” and to “prevent unforeseen consequences,” and therefore to seek more moderate solutions, relying on existing engines and assemblies at the expense of reducing the combat and technical characteristics of the NMT achieved in the presented projects.

I am opposed to such attitudes and consider them not only incorrect but even harmful, contradicting the directives of our Party and Government to strive for everything new, advanced, and progressive—first and foremost in military technology.

In all cases, we are not inclined to “trail behind” foreign technology and will persistently seek opportunities to work on new, although very difficult, directions in special-purpose vehicles.

It must be noted that the Americans, in particular, during the postwar period, have carried out extensive work in the field of the NMT, created many designs, and continue to improve them.

Numerically, we are producing fewer designs, and this is our shortcoming, despite having all the possibilities to always be ahead.

In the presented NMT project, our plant set itself the task of achieving the maximum possible exceedance of the specified TTR and incorporating into the new vehicle everything new that would contribute to improving its combat and technical characteristics. In addition, in this NMT project we attempted to make a sharp break from existing designs, achieving a certain leap similar to that which occurred with the appearance of the T-34.

The NMT is a medium tank within the traditional weight class, but with sharply increased tactical and technical characteristics, far surpassing all vehicles known to us. We present three developments: two variants of the tank with 4TD and D12-U engines, and one variant—the reinforced “430U.” The 4TD and D12-U engines have a power output of 580 hp. They occupy the same volume and operate with the same transmission. When installing the D12-U, we obtain: high fuel consumption (170–190), reduced cruising range (a decrease of 10–15%), greater heat transfer to the coolant—195 thousand kcal/hour versus 139 thousand kcal/hour, low exhaust back pressure, the need to increase the water radiator area by 60%, lower gas flow rate—0.48 versus 0.85, and a lower flow of ejected air—3.32 kg/s versus 4.08 kg/s.

The vehicle layout is new and original and opens up good prospects for further development. The plant succeeded in significantly exceeding the specified TTR while remaining within the assigned weight. The project is realistic and within the plant’s capabilities.

All this makes it possible to sharply increase the combat and tactical qualities of domestic armaments and thereby further strengthen the power of our Soviet Army relative to foreign armies.

The achieved parameters are far from being the limit and can be further improved. Hundreds of comments have been worked through, which will be reflected in the detailed design.

As part of an initiative effort, a project of a “reinforced” tank in terms of armament and protection is presented, developed on the basis of the “430” and providing for the possibility of further improvement of the NMT.

All of this has been achieved through a new layout of the power-train compartment and a new engine.

When using an engine of the V-2 type, only part of these characteristics can be obtained; we presented such results in 1953.

The disadvantages of using the 8D12-U engine are: greater difficulty in meeting the weight limits, reduced cruising range, high fuel consumption, smaller ammunition load, an engine hood that covers the engine, low back pressure for ejection, large radiator area, large power-train compartment volume, and the absence of a major leap in NMT development.

Object “419” will be such a vehicle within a year. We are capable of doing better than what is proposed with the 8D12-U engine.

We must not be afraid of a new engine and new directions in the design of mechanisms (gearbox, track, automation). We still have many reserves for improving tactical and technical characteristics, reducing weight, and more efficiently using internal volumes.

 

 


 

 

 
 
ÃËÀÂÍÀß ÍÀ ÂÎÎÐÓÆÅÍÈÈ ÏÅÐÑÏÅÊÒÈÂÍÛÅ
ÐÀÇÐÀÁÎÒÊÈ
ÎÃÍÅÂÀß ÌÎÙÜ
ÇÀÙÈÒÀ ÏÎÄÂÈÆÍÎÑÒÜ 

ÝÊÑÊËÞÇÈÂÍÛÅ ÌÀÒÅÐÈÀËÛ  ÁÈÁËÈÎÒÅÊÀ ÔÎÒÎÎÁÇÎÐÛ