ÃËÀÂÍÀß ÍÀ ÂÎÎÐÓÆÅÍÈÈ ÏÅÐÑÏÅÊÒÈÂÍÛÅ
ÐÀÇÐÀÁÎÒÊÈ
ÎÃÍÅÂÀß ÌÎÙÜ
ÇÀÙÈÒÀ ÏÎÄÂÈÆÍÎÑÒÜ 

ÝÊÑÊËÞÇÈÂÍÛÅ ÌÀÒÅÐÈÀËÛ  ÁÈÁËÈÎÒÅÊÀ ÔÎÒÎÎÁÇÎÐÛ
 


 

Technical Project “Object 432” , April 1961: The Birth of the T‑64 and Its Key Innovations. Part 2

Andrei Tarasenko

Abstract

This article examines the technical project “Object 432” (April 1961), focusing on the design decisions that shaped the mobility and maneuverability of what would become the T-64 main battle tank, as well as the debates surrounding those decisions. Particular attention is given to the powerplant, transmission, suspension, and track system, which were the most controversial elements of the tank. The paper analyzes criticism directed at the 5TD/5TDF opposed-piston diesel engine, the ejector cooling system, and the perceived lack of growth potential in the suspension, and shows how these issues influenced parallel design efforts in Nizhny Tagil and Leningrad, leading to the T-72 and T-80. From a conceptual perspective, the article argues that despite structural differences, the T-64, T-72, and T-80 shared a common ideological foundation formulated by A. A. Morozov in the 1960s, a concept that remains relevant due to the absence of a fundamentally new tank employment doctrine. Using archival documents, technical data, and contemporary assessments, the article concludes that while Object 432 suffered from significant reliability and production challenges, its overall concept proved viable and forward-looking. The T-64’s long production run and capacity for modernization demonstrated that its key design solutions, particularly in mobility and layout, were not only justified for their time but influential for subsequent generations of main battle tanks.

 

Perhaps the greatest criticism of the T-64 tank concerned the solutions adopted to ensure mobility and maneuverability. The suspension was considered to lack sufficient growth margin for an increase in vehicle mass. The engine was criticized for insufficient reliability and manufacturing complexity. The ejector cooling system was also criticized, allegedly for failing to provide adequate cooling at increased engine power.

These elements of the tank were subject to attempts at redesign by the design bureaus in Nizhny Tagil and Leningrad , where vehicles were created “in the image and likeness” of the T-64. While following its general concept, these machines had distinct design differences (suspension, engine).

A tank concept is a system of views on the nature of possible combat operations and the formulation of goals and tasks facing armored forces in the near and medium-term future. From a conceptual standpoint, the Nizhny Tagil T-72 and the Leningrad T-80 did not differ from the T-64. Structurally they were different; conceptually they were not. The concept of the T-64 tank proposed by A. A. Morozov was fully relevant to its time—the 1960s–1970s. History has decreed that nothing fundamentally new has yet been introduced into serial production to replace it; the problem lies not only in funding, but also in the absence of a coherent ideology for tank employment in future wars.

Was the bet on the 5TD engine correct? History itself likely provided the best answer:

“As a result of our joint work with our Kharkiv colleagues, a coordinated decision was made to adopt for further development a unified powerpack with the Kharkiv 6TD-2 engine [a development of the 5TD concept], but with all tank engine systems developed by the Tagil designers.”
This conclusion was reached at the twilight of the USSR [1].

The United States also placed its bet on a family of two-stroke opposed-piston diesel engines (3-, 4-, and 6-cylinder) under the Advanced Combat Engine (ACE) program, which in essence represents a modern technical reincarnation of the concepts embodied in the 4TPD, 3TD, 5TD, 5TDF, and 6TD engines [2].

Issues related to testing the ejector cooling system of the T-64A tank with the V-46 engine are examined in source [3].

 

 


Engine Compartment

MANEUVERABILITY

Increasing the mobility and maneuverability of armored forces in terrain conditions is, given modern means of warfare, one of the primary and long-overdue tasks.

Solving this task is possible only by increasing the average cross-country speed of tanks, which for vehicles currently in service lies in the range of 20–25 km/h—clearly inadequate for the required tempo of combat operations.

Therefore, a number of measures were implemented in this project which, taken together, are intended to sharply increase the average speeds of the “ 432” tank from 20–25 km/h to 35–45 km/h.

The maximum speed of the new tank is specified at up to 65 km/h . The decisive factor in achieving these speeds is the availability of reserve power, which—given a high level of efficiency of the tank mechanisms and powerplant (and especially the tracked propulsion system)—can be achieved at a specific power of no less than 20 hp per ton.

Accordingly, the project adopted a 700 hp engine, and the tank mass was set at 34 tons, ensuring the required specific power of over 20 hp/t.

The main provisions concerning the powerplant and suspension that determine the maneuverability of the tank are outlined below.

 

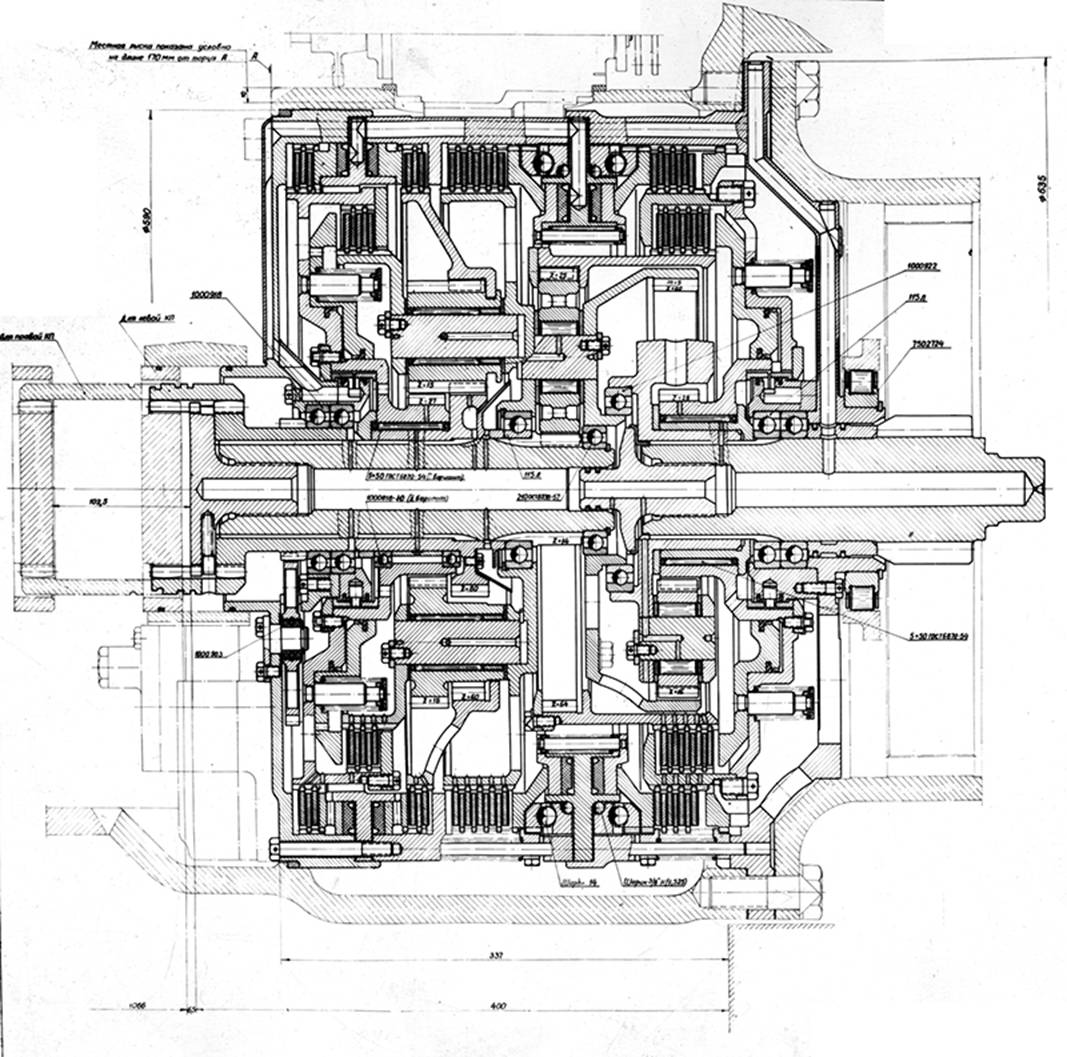
POWERPLANT

The “ 432” tank is equipped with a two-stroke turbo-piston engine of the 5TD type, boosted to the required output of 700 hp (5TD-F).

The general layout of the powerplant and the engine-transmission compartment was retained as on the “ 430” tank, i.e., with a transversely mounted engine and power output to two side gearboxes.

Unlike the “ 430,” the ejector cooling system is implemented with a rear-mounted ejector rather than a side-mounted one and is installed on a removable roof. When the roof is opened (rotating around an axis located at the engine bulkhead), the entire cooling system is lifted together with the roof, providing free access to all components and assemblies of the engine-transmission compartment.

In addition to improving access, the rear placement of the cooling ejector made it possible to optimize its geometric parameters, eliminate recirculation losses, improve the operating conditions of the ejector itself (especially at high speeds), and contribute to the protection of the louver system.

 

5TDF engine (Item “ 457” ), turbine-side view


 

Note

The 5TDF engine initially represented the most problematic aspect of the new tank. At the height of work on the “ 432,” A. A. Morozov made the following diary entry, clearly showing that he harbored no illusions about the machine’s trouble-free future:

Diary entry by A. A. Morozov, 18 April 1961:
“In the West I see no major achievements. The M-60 tank weighs 46.3 tons—this is neither a victory, and without the 105 mm gun it would be an ordinary vehicle. For us, this stage has already been passed. We are laying down and solving far more significant combat characteristics at lower weight and dimensions.

Speaking of armament, one cannot ignore everything else that restrains tank development in our country. First and foremost—engines. We simply do not have them, and it is unknown when we will. Aviation developed as a result of progress in engines, but we have no engines and do not seriously develop them. Formally there are research institutes, design bureaus, factories—but engines are not being worked on, and research proceeds sluggishly. The 5TD is not a hawk, not even a sparrow in the hand. At best, it may be obtained in 5–7 years.”

To describe the situation of that period, it is also worth quoting L. N. Kartsev (Prospects for Industry Development, Meeting [Conference] at the State Committee for Defense Technology, 10–11 August 1960):

“Protection cannot yet keep pace with means of destruction, and mass must not exceed 34 tons. The proposed layouts are unrealistic, not thought through, and we know this from our own experience. These layouts disorient chief designers. ïåðñïåêòèâíûå layouts must be made following the type of the 430, with improved means of destruction. Our team is not capable of solving new complex tasks.”

At the same meeting, A. A. Morozov stated:
“The question of prospective industry development has never been discussed or considered before. We worked spontaneously—first building prototypes and then providing an ‘ideological basis’ afterward. Many do not share or approve my views.”

And what are these views?

1.      The necessity of developing gun armament and the futility of creating missile platforms before missile weapons themselves are developed.

2.      The unnecessary nature of special nuclear protection for a tank.

3.      A product should not be tied rigidly to its mass.

 

TRANSMISSION

The “ 432” tank uses a transmission similar in layout to the 6-speed gearbox of the “ 430” tank. However, the transmission is 7-speed, as it incorporates a clutch combination (F3–F5) not used in the 6-speed gearbox, providing an additional gear.

Gear ratios were revised to suit the new speed range in order to ensure higher travel speeds, and the final drive ratio was changed.

To allow use of the engine brake without depressing the clutch pedal, the design of the engine-brake control units was revised.

Transmission control units were retained essentially unchanged from the “ 430,” modified only for the 7-speed gearbox and to minimize hydraulic resistance in oil passages and lines. To improve control precision and gearbox drainage, the transmission hydraulic pumps were made 50% more productive and relocated from the engine to the gearbox.

As follows from the provided dynamic characteristics, the tank with this transmission achieves very high dynamic performance, with small gaps between gears.

Transmission


Final drive

 

SUSPENSION

All major suspension components except the track were adopted in a design similar to that of the “ 430” tank and were modified only to suit the new layout, which widened the lower hull, and to further reduce the weight of individual components.

Differences from the430” include:

·        By increasing the maximum stress in torsion bars to 13,200 kg/cm² (instead of 9,000 kg/cm²), the torsion bars of both sides were arranged coaxially and terminate along the longitudinal axis of the vehicle.

·        To reduce weight, the four central road wheels were made Ø500 mm (compared to Ø550 mm for the outer wheels) and significantly lightened.

·        The shock absorber design was changed; due to layout constraints, the cylinder diameter was reduced to 105 mm (from 115 mm ) and connected directly to the suspension arm through the wheel axle. Shock absorber power was significantly increased.

·        Instead of three return rollers, four per side were installed. The rollers were reduced in diameter, lightened, and mounted on brackets welded to the hull sides.

Regarding ride smoothness, calculations and practical test data from the “ 430” tank suspension show very high ride quality parameters, fully suitable for the “ 432” tank at its increased speeds. Moreover, a further improvement in ride quality can be expected due to a slightly softer suspension (m₄₃₂ ≈ 230 kg/cm vs. m₄₃₀ ≈ 250 kg/cm) and more powerful shock absorbers.

 

Hydraulic shock absorber.


Support roller, outer.

Suspension balancing beam.


 

 

 

TRACK

The track for the “ 432” tank was designed with rubber-metal joints (silent-block type) and follows a layout similar to tracks used on American tanks. Its design accounts for operation with metal-rimmed road wheels.

The track uses a proven rubber bushing size of Ø40×5 mm (with a pin diameter of 30 mm ). Track links and connectors were designed as stamped components.

Calculations by VNII-100 and experimental testing of individual track elements showed satisfactory strength characteristics.

Encouraging results were also obtained from preliminary tests by VNII-100 and the Stalin Academy of the decisive parameter for a highly maneuverable tank—the efficiency (η) of the track. It was found to be no lower than the calculated value:

·        At 40 km/h: ~0.90 (vs. 0.85 for tracks with open metal joints)

·        At 65 km/h: ~0.85 (vs. ~0.69)

Thus, at maximum speed, the use of this track should save approximately 100 hp.

The assembled track width is 520 mm , providing an average ground pressure of ~0.79 kg/cm².

 

 

 

The track (432.55.ñá)

 


The track (432.55.ñá) during trials.

 

Testbed for trials of the running gear of Object “ 432,” based on the OT-54 tank.

 

Õîäîâàÿ ÷àñòü, ïðåäñòàâëåííàÿ â òåõíè÷åñêîì ïðîåêòå èìåëà äâà àìîðòèçàòîðà íà êðàéíèõ îïîðíûõ êàòêàõ, ïðè÷åì ýòè êàòêè (ïåðâûé è øåñòîé) áûëè âûïîëíåíû óñèëåííûìè óâåëè÷åííîãî ( 550 ìì ) ïî ñðàâíåíèþ ñ îñòàëüíûìè ( 500 ìì ) äèàìåòðà. Ýòà õîäîâàÿ ÷àñòü îòðàáàòûâàëàñü íà õîäîâîì ìàêåòå, âûïîëíåííîì íà áàçå òàíêà ÎÒ-54.  äàëüíåéøåì îò ðàçóíèôèêàöèè êàòêîâ îòêàçàëèñü. Áîëåå òîãî, îáû÷íûé îïîðíûé êàòîê ñ âíóòðåííåé àìîðòèçàöèåé ñ 1970 áûë ïðåâðàùåí â âàæíûé óçåë õîäîâîé ÷àñòè – íàïðàâëÿþùåå êîëåñî. Ýòî ïðèâåëî ê óäåøåâëåíèþ ïðîèçâîäñòâà òàíêà, à òàêæå óëó÷øèëî õîäîâûå êà÷åñòâà òàíêà, ïîñêîëüêó ñòàðûé âàðèàíò íàïðàâëÿþùåãî êîëåñà áûë áåç âíóòðåííåé àìîðòèçàöèè. Ó÷èòûâàÿ íàëè÷èå ÷àñòûõ òîðìîæåíèè ãóñåíèö (ïðè ïîâîðîòàõ òàíêà, ïðè îñòàíîâêàõ, ïðè äâèæåíèè íà çàäíåì õîäó), ïðè êîòîðûõ íàãðóçêè íà íàïðàâëÿþùèõ êîëåñàõ ìîãóò äîñòèãàòü 48 ò., íàãðóæåííîñòü èõ ïîëó÷àåòñÿ çíà÷èòåëüíî áîëåå âûñîêîé, ÷åì ïîãðóæåííîñòü êàòêîâ. Ïîýòîìó óñòàíîâêà îïîðíûõ êàòêîâ íà ìåñòî íàïðàâëÿþùèõ ïðèâåëà ê áîëåå áûñòðîìó âûõîäó èõ èç ñòðîÿ, èõ çàêóïêó íà Äíåïðîïåòðîâñêîì ÏÎ «Äíåïðîøèíà», îñíîâíîì ïîñòàâùèêå îïîðíûõ êàòêîâ äëÿ ÕÇÒÌ, íå áûëî íåîáõîäèìîãî îáîðóäîâàíèÿ, ïîýòîìó íàïðàâëÿþùèå êîëåñà èçãîòîâëÿëèñü íà Áàðíàóëüñêîì øèííîì çàâîäå. Òàêîå ïîëîæåíèå ñóùåñòâîâàëî äîñòàòî÷íî äîëãî, ïîêà â Äíåïðîïåòðîâñêå íå ïðåäëîæèëè ñïîñîá îáðàáîòêè ïîâåðõíîñòåé ïðèêëåéêè ðåçèíû àáðàçèâîì íà îñíîâå àïàòèòîâîãî êîíöåíòðàòà. Ýòî ïîçâîëÿëî äîñòè÷ü ïîëíîé âçàèìîçàìåíÿåìîñòè è óíèôèêàöèè, à òàêæå ñíèçèòü ñòîèìîñòü èçãîòîâëåíèÿ. Êàòêè òàêîãî òèïà óñòàíàâëèâàëèñü ñ 1981 íà âñå ñåðèéíûå Ò-64.

Note: The running gear of the “ 432” tank is one of the most debated topics among specialists and enthusiasts interested in this subject. Problems with its reliability are described both in the diaries of A. A. Morozov and in other sources [4].

Nevertheless, it is a historical fact that during the period of serial production—from the moment the tank was adopted into service on 30 December 1966 by the decree of the USSR Council of Ministers and the CPSU Central Committee No. 982-321ss until 27 December 1987, when the last T-64BV left the assembly shop—the combat weight increased from 36 to 42.4 tons. The absolute increase in mass amounted to 6.4 tons, or 17.7 percent. Over the entire life cycle of the tank (from adoption into service), the increase in the mass of the running gear itself amounted to only 1.1 percent [5]. Compared with the technical design project, the mass of the running gear increased (significantly) from 5,129 to 6,121 kg .

The running gear presented in the technical design featured two shock absorbers on the outer road wheels; these wheels (the first and sixth) were reinforced and had an increased diameter of 550 mm compared with the others ( 500 mm ). This running gear was tested on a mobility test rig built on the basis of the OT-54 tank. Subsequently, the differentiation of road wheel types was abandoned. Moreover, starting in 1970, the standard road wheel with internal damping was converted into a key running-gear component—the idler wheel. This led to a reduction in production cost and also improved the tank’s running characteristics, since the earlier idler wheel design lacked internal damping.

Taking into account the frequent braking of the tracks (during turns, stops, and reverse movement), during which loads on the idler wheels can reach up to 48 tons, their load is significantly higher than that borne by the road wheels. Consequently, installing road wheels in the idler position led to their more rapid failure. At the same time, the Dnepropetrovsk Production Association “Dneproshina,” the main supplier of road wheels for the KhZTM plant, lacked the necessary equipment for their manufacture, and therefore idler wheels were produced at the Barnaul Tire Plant.

This situation persisted for quite a long time until a method was proposed in Dnepropetrovsk for treating rubber bonding surfaces with an abrasive based on apatite concentrate. This made it possible to achieve complete interchangeability and unification, as well as to reduce manufacturing costs. Road wheels of this type were installed on all serially produced T-64 tanks starting in 1981.


 

Tactical and Technical Characteristics

No.

Parameter

432

430

T-55

U.S. tank M60

General data

 

 

 

 

 

1

Combat weight, t

34

36

36

46.3

2

Specific power, hp/t

20.6

16.6

16.1

16.2

3

Crew, persons

3

4

4

4

4

Length (gun forward), mm

8,778

8,785

9,000

8,330 (gun backward)

5

Width, mm

 

 

 

 

 

over tracks

3,250

3,115

3,270

3,630

 

over fenders

3,280

3,145

 

over removable side screens

3,430

6

Height (to turret roof), mm

2,146

2,160

2,230

2,990

7

Ground clearance, mm

 

 

 

 

 

to main hull bottom

480

484

480

457

 

— to torsion bar embossments and engine-transmission compartment

455

454

467

 

under driver

415

Crew arrangement

 

 

 

 

 

8

Driver

In hull, on longitudinal axis

In hull, on longitudinal axis

In hull, left

In hull, on longitudinal axis

9

Tank commander

In turret, right, seated

In turret, left, seated

In turret, left, seated

In turret, right, seated

10

Gunner

In turret, left, seated

In turret, left, seated

In turret, left, seated

In turret, right, seated

11

Loader

None

In turret, right, standing

In turret, right, standing

In turret, left, seated


 

 

 

Weight Breakdown (Grouped Summary)

Tank “ 432” with TPDMS gunner’s sight–rangefinder

No.

Item

Weight, kg

 

Remarks

 

 

432

430

 

1

Hull

11,525

12,345.53

Fiberglass lining 565; spall liner and 560 kg of lead

2

Turret

6,798.19

5,104.25

 

3

Armament

3,462.87

3,345.03

Autoloader mechanism 395.87

4

Powerplant

1,764.88

1,965.19

Engine 1,040

5

Transmission

1,348.10

1,313.19

 

6

Controls

200

186.01

 

7

Running gear

5,129.67

6,265.34

 

8

Electrical and radio equipment

517.6

541.8

 

9

Equipment and tools

464.12

487.95

 

 

Log

85

85

 

 

Tarpaulin

62

62

 

10

Fuel

990

935

 

 

Lubricants

155

132

 

 

Water

70

73

 

11

Ammunition

984.72

1,811.64

Gun rounds: 900

12

Crew

300

400

 

Total:

 

33,938.35

35,448.51

 

 

 

Variant II of Tank “ 432” with TRLD sight–rangefinder

No.

Additional components

Weight, kg

Remarks

1

TRLD equipment

200

 

2

Equipment mounting

25

 

3

Additional sight weight

22

 

4

Additional turret mass

20

 

5

Antenna armored housing

111

 

Tank weight (432 with TRLD):

 

34,322.35

(33,938.35 + 384)

 

 

 

LIST

of principal organizations and enterprises involved in the development and manufacture of the “ 432” tank

No.

Organization

Scope of work

1

Uralmash Plant

Development, on the basis of the U-5TS gun, of the modified D-68 gun and manufacture of prototype samples

2

Central Research Institute No. 173 (TsNII-173)

Development and manufacture of prototype samples of: the “Siren” stabilizer; TRLD equipment

3

Central Design Bureau No. 393 (TsKB-393)

Development and manufacture of prototype samples of TPDMS-type gunner’s sight–rangefinders and modified night sights

4

Plant No. 69

Development and manufacture of prototype samples of T2-S type sights for the TRLD system

5

Research Institute No. 24; Research Institute No. 6; Research Institute No. 147

Development of separate-loading ammunition with a partially combustible cartridge case (“Zhelud”)

6

Zhdanov Heavy Machine-Building Plant

Development of production technology and experimental refinement of various turret designs with composite armor; manufacture of prototype turrets and hull armor component sets

7

VNII-100

• Development, experimental refinement, and manufacture of prototype air cleaners

• Participation in the development of cooling, preheating, and fighting-compartment heating systems, and experimental work on individual units and components

 

 

• Joint development with the plant of a rubber-metal joint track; conduct of all preliminary studies and participation in prototype refinement

 

 

• Bench testing of individual suspension components

 

 

• Research into transmission operation using low-viscosity oil

 

 

• Experimental work on metal-ceramic friction discs

 

 

• Refinement of 12ST-70 batteries and development of new VKU units

 

 

• Participation in the creation, manufacture, and refinement of a turret with ultraporcelain inserts

 

 

8

Research Institute of Plastics

Development of fiberglass materials and anti-radiation liners; supply of prototype sets and mastering of installation technology in the tank; substantiation and selection of the tank’s anti-radiation protection; joint structural design of the protection with the plant

9

Branch of VNII-100

Joint development with the plant of comprehensive tank protection against armor-piercing and HEAT projectiles; conduct of required research, testing, and technology development; performance of necessary joint refinement work; research and development of suspension torsion bars with τ = 13,250 kg/cm²

10

NIID

Participation in the overall development of the 700 hp 5TDF engine; conduct of research, experimental, and refinement work on individual engine units

11

Stalin Academy

Selection and refinement, jointly with the plant, of the tank suspension system and track layout; participation in the development of a new track; bench testing of individual suspension components; participation in research on new metal-ceramic friction alloys

12

NIIBT Proving Ground

Conduct of research and testing of individual units and mechanisms, as well as comprehensive system trials

13

VIAM

Development of a new metal-ceramic alloy for transmission friction discs

14

MTZ

Refinement and manufacture of prototype starter-generator units


 

The Final Stage of the T-64’s Career

Over the entire period of serial production, a total of 1,192 T-64 tanks were manufactured, including: 90 in 1964; 160 in 1965; 294 in 1966; 330 in 1967; and 318 in 1968.

Tanks produced in 1964–1965 were written off by the late 1960s. The remaining vehicles stayed in service for a long time, despite possessing a very significant drawback—unique ammunition for the D-68 gun, which was not used by any other artillery system of the Soviet Army.

Between 1977 and 1981, almost all T-64 tanks (Object “ 432” ) underwent major overhaul, during which they were upgraded to the technical level of the T-64A (without replacement of the main armament). After overhaul, the tanks received the designation T-64R (“remontnyy,” i.e., overhauled). In design documentation, this variant was designated “432A.”

In the final years of the USSR , the withdrawal of troops from the territories of the Warsaw Pact countries began. T-64 tanks stationed in the European part of the USSR were transferred to storage bases in Atar ( Kazakhstan ) and Samarkand ( Uzbekistan ), where they were replaced by more modern T-64A and T-64B tanks. The last Object “ 432” tanks on Ukrainian territory were scrapped in 2007 at the Pyriatyn base in accordance with the Treaty on Conventional Armed Forces in Europe .

Tanks withdrawn to the territory of the Republic of Belarus were dismantled at the Borisov plant by the early 2000s.

 

Object “ 432” Tanks Withdrawn from Europe . April 1998, 140th Repair Plant, Borisov ( Belarus ).

 

The conclusion of this material may be illustrated by an excerpt from a speech delivered at a special-production assembly at the Malyshev Plant on 12 January 1966:

“…All of you witnessed how, last year, we were constantly the focus of attention from numerous commissions and responsible representatives of the highest government bodies. This is understandable: tanks for the country are the issue No. 2—tanks come immediately after missiles, even ahead of aviation.

For this reason, at a meeting of the Military Council, where I was to report, Comrade L. I. Brezhnev directly asked me: ‘And was it the right decision, Comrade Morozov, that we settled on your tank?’ I answered in the affirmative, stating that we had gained time, moved ahead, discarded everything unfit, and pulled sharply ahead—and that such an achievement is worth paying for in funds, time, and labor.

However, for the time being, all the deadlines granted to us have passed, and we have not yet settled our debts nor confirmed our promises by deeds.

The rehearsals of the “ 432” proving-ground and troop trials conducted by us in 1965 indicate that there are still existing design and production shortcomings.

All of this has aggravated the overall situation at the plant and intensified doubts within government circles.

We are still being forgiven for quantity, cost, and our lack of organization, but as far as quality and reliability are concerned, this issue never leaves the agenda of all organizations and remains the principal question regarding the “ 432” tank.

Unfortunately, we are not fighting for reliability vigorously enough, substituting it with everything else and interfering with one another. Designers, experimental engineers, and production personnel are all at fault. We lack a common language and unity of action on this matter. This is neither the place nor the time to rake over past mistakes. The main thing now is not to repeat them. That is the purpose and task of today’s meeting.

One way or another, the Minister and the Head of the UNTV have given us the last and final deadline for completing the refinement work—March of this year, the opening day of the 23rd Congress of the CPSU. This honorable assignment must become a socialist obligation and a report by the plant’s workforce to the Central Committee of the CPSU, and the beginning of a new life for our plant.

All organizational and preparatory work has already been completed, and now the matter rests with fulfilling this task on time and with the highest quality.

Our plant, comrades, is a pioneer of Soviet tank building, and its workforce has repeatedly solved major and responsible tasks. Many of the veterans present here have more than once been recognized by the Government, and their names are treated with great respect and trust.

I have no doubt that our collective will also cope with this honorable task with distinction, thereby further enhancing the glory of the Kharkov tank builders. I hope that in your person, as before, I will always see my comrades-in-arms at work; for my part, I wish to assure you that I will apply all my strength and knowledge so that, together with you, we may successfully solve this major and honorable task.”


List of Sources Used:

1.      Chief Designer Vladimir Potkin. Tank Breakthrough. Collected Articles. Nizhny Tagil: DiAl Advertising and Publishing Group LLC, 2013.

2.      U.S. Army Opposed Piston Engine Research & Development. Bruce Brendle, Ph.D., PMP. Available at: http://achatespower.com/wp-content/uploads/2018/11/Achates-Power-OPES_TARDEC_Brendle.pdf

3.      Ejector Cooling System of a Power Unit with the V-46 Engine. V. S. Dubov, V. A. Ivanov, L. S. Melnikov, G. A. Mikhailov, P. A. Osipov. Bulletin of Armored Vehicle Technology, 1976, No. 2.

4.      Report on the Results of a Study of Operating Conditions and Reliability of the Running Gear of the T-64A Tank. Military Unit 68054, 1970.

5.      V. V. Polikarpov, A. F. Pustovalov. History of the Improvement of the T-64 Tank During Serial Production. Bulletin of Armored Vehicle Technology, 1988, No. 11.

 

 

 

 





 
ÃËÀÂÍÀß ÍÀ ÂÎÎÐÓÆÅÍÈÈ ÏÅÐÑÏÅÊÒÈÂÍÛÅ
ÐÀÇÐÀÁÎÒÊÈ
ÎÃÍÅÂÀß ÌÎÙÜ
ÇÀÙÈÒÀ ÏÎÄÂÈÆÍÎÑÒÜ 

ÝÊÑÊËÞÇÈÂÍÛÅ ÌÀÒÅÐÈÀËÛ  ÁÈÁËÈÎÒÅÊÀ ÔÎÒÎÎÁÇÎÐÛ